Az értékesítő:
Kotró Anett
+36 20 237 5558

Eladó családi ház Dad, 70 000 000 Ft, 163 négyzetméter

70 000 000 Ft
családi ház, 163 négyzetméter
Építőanyag:
Tégla
Egész szobák:
6
Komfort fokozat:
Dupla komfort
Fűtés módja:
Gáz
Ingatlan állapota:
Átlagos
Azonosító:
11595936
Értékesítés típusa:
eladó
Ingatlan típusa:
családi ház
Jelleg:
Családi ház
Település:
Dad
Alapterület:
163
Telekterület:
4294
Ár:
70 000 000 Ft
Szintek száma:
1 szint + tetőtér
Fűtés jellege:
Cirkó
Elhelyezkedés:
Utcafronti
Kor:
21-50 éves
Terasz:
Nincs
Erkély:
Van
Beépíthető tetőtér:
Van
Padlás:
Van
Melléképület:
Van
Pince:
Van
Klíma:
Van
Bútorozott:
Nem bútorozott
Telekterület típusa:
négyzetméter
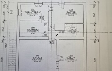
Dad csendes utcájában található a 241m2-es családi ház, melynek hasznos alapterülete 163 m2. Az ingatlan beton alappal rendelkezik, falazata tégla, mely külső hőszigeteléssel ellátott. A tető felújítása és tetőtér beépítése 2005-ben történt. A nyílászárók műanyag ablakok. A fűtésről gázkazán és vegyes tüzelésű kazán gondoskodik, a melegvíz-ellátást villanybojler biztosítja. Az első szinten, a két szobában két klímaberendezés található. A ház elrendezése ideális akár két generációnak is, remek lehetőséget rejt magában. Az alsó szinten: aknás garázs, műhely, és tárolók, kazánház található. A garázs és műhely fűthető. A lakószint elrendezése: két szoba, konyha, étkető, kamra, fürdőszoba. A tetőtér: 4 szoba, fürdőszoba. A tetőtéri szobák közül egy konyhaként funkcionált, ide bekötötték a vizet. A háznak két bejárata van. Az udvaron istálló található, ahova a villany és víz is bekötésre került. A családi ház remekül alakítható, ideális választás mindazoknak, akik szeretik a tereket, a nagyobb földterületet. Részletekkel, megtekintéssel kapcsolatban keress bátran!
https://ingatlanok.hu/elado/haz/dad/70-millio-ft;163-negyzetmeter;6-szoba;cirko-futes/11595936