Az értékesítő:
Varga György
+36 70 716 9666

Eladó iroda/üzlethelyiség Debrecen, 215 000 000 Ft, 255 négyzetméter

215 000 000 Ft
iroda/üzlethelyiség, 255 négyzetméter
Azonosító:
11596032
Értékesítés típusa:
eladó
Ingatlan típusa:
iroda/üzlethelyiség
Jelleg:
Iroda
Település:
Debrecen
Alapterület:
255
Ár:
215 000 000 Ft
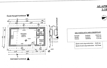
Debrecen egyik fejlődő ipari részén a Gáspár György kertben eladó 26710 nm-es iparivá minősíthető terület. Jellemzők: - 175 nm-es szerkezetkész csarnok, - 35 nm-es iroda, - 45 nm-es műhely/garázs, - ipari áram 3X32A, - vezetékes víz, - fúrott kút, - a telek előtt internet optikai kábel, - 53 méteres utcafronttal. Jelenleg egy félbe maradt építéssel együtt eladó, aminek már a befejezése az új tulajdonos feladata lesz. Az ingatlanról teljes körű videó felvétel készült, a megtekintése érdekében weboldalunkon keresse a UZ019362 regisztrációs számon vagy keressen telefonon közvetlenül. Kedves Üzleti Vállalkozók! Ha Önöknek is fontos, hogy cégük számára a legjobb helyszínt találják meg, akkor figyelmükbe ajánljuk ezt a fantasztikus ingatlant, amely ideális lehetőséget kínál üzleti célú hasznosításra. A környék kiváló adottságokkal rendelkezik, és a közlekedési lehetőségek is kiválóak. Bármilyen kérdésre szívesen válaszolok, keressen nyugodtan! Ez az ingatlan a “Felezőcsomag” megbízási portfólióhoz tartozik. A részletek az Otthon Centrum weboldalán olvashatja. Ez az ingatlan a "Felező csomag" megbízási portfólióhoz tartozik. Részletek az Otthon Centrum weboldalán.
https://ingatlanok.hu/elado/iroda/debrecen/215-millio-ft;255-negyzetmeter;iroda-jellegu;nincs-megadva-berendezett/11596032