Az értékesítő:
Kovács Rita
+36 70 412 5441

Eladó családi ház Zalaegerszeg, 129 900 000 Ft, 402 négyzetméter

129 900 000 Ft
családi ház, 402 négyzetméter
Építőanyag:
Tégla
Egész szobák:
7
Fűtés módja:
Gáz
Ingatlan állapota:
Azonosító:
11596191
Értékesítés típusa:
eladó
Ingatlan típusa:
családi ház
Jelleg:
Családi ház
Település:
Zalaegerszeg
Alapterület:
402
Telekterület:
4819
Ár:
129 900 000 Ft
Szintek száma:
Földszintes
Fűtés jellege:
Cirkó
Kor:
11-20 éves
Erkély:
Van
Telekterület típusa:
négyzetméter
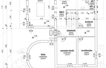
Mintha az erdő legmélyén, a természet közepén jártam volna. Ez volt az első benyomásom, amikor megpillantottam ennek a családi háznak a környezetét. Vadászház, panzió a belvárostól mindössze 5 percre? Kérdeztem. Nem, nem. Egy otthonos családi ház, ahol ezek az érzések öntik el a szemlélőt. A telek, ahová a kíváncsi szemek nem láthatnak be, 4819 m2 nagyságú és a Becsali hegyen található. Igény esetén akár meg is osztható. Felső részére épült a három szintes ház, a középső részen gondozott, hangulatos kert, halastó, az alsó részen pedig saját kis erdő. A Porotherm 38-as falazattal, dupla hőszigetelő vakolattal épült ingatlan 2009-ben lett befejezve, az akkori kornak megfelelő, igényes anyagokkal. 2017-ben felújítások történtek (új kazán, festés, új tulajdonos igényeinek megvalósítása). A tető héjazata Bramac hódfarkú cseréppel fedett. Nyílászárói fa szerkezetűek, hőszigetelt üvegezéssel és redőnyökkel felszerelve. Fűtése gázcirkó kazánnal történik radiátoros és padló fűtéses hőleadással, kiegészítésként a nappaliban kandalló és több helyiségben klímaberendezések találhatók. A pinceszint nettó 145,7 m2-es, kert kapcsolatos. Itt található egy biliárd szalon, szauna, bor tároló, kondi terem, vizes blokk, mosókonyha és egyéb tárolók. Ezen helyiségek akár egy kisebb vállalkozásnak is helyet adhatnak. A földszinti élettér nettó 125,1 m2-es, ehhez kapcsolódik egy gyönyörű kilátást nyújtó 40,38 m2-es terasz és egy dupla garázs 33,34 m2-en. Ezen a szinten nappali, konyha, étkező, kettő szoba, fürdő, külön WC és terasz lett megépítve. A tetőtéri szint nettó 92,52 m2-es, bruttó 120,15 m2, ezen kívül egy 6,25 m2-es erkély került kialakításra, 4 négy szobával, kettő fürdővel és kettő gardrób szobával. Így az összes nettó fűtött hasznos alapterület 363,32 m2-es, garázzsal, terasszal, erkéllyel 402,91 m2, bruttó összes pedig 470,92 m2. Közművek közül a csatorna nincs kiépítve az utcában, víz, villany, gáz természetesen bekötve. A telek besorolása zártkerti, művelési ág alól ki van vonva, viszont az épület családi házként van feltüntetve, így bármilyen hiteltermék felvehető rá. Irodánk teljes körű szolgáltatást nyújt kereső ügyfeleinek. Szakszerű tanácsadással, ingyenes CSOK és hitelügyintézéssel, energetikai tanúsítvány elkészítésével és kedvező díjszabású ügyvéddel nyújtunk segítséget!
https://ingatlanok.hu/elado/haz/zalaegerszeg/130-millio-ft;402-negyzetmeter;7-szoba;cirko-futes/11596191