Az értékesítő:
Az Ön otthona
+36 20 965 8200

Eladó családi ház Nyíregyháza, 81 990 000 Ft, 148 négyzetméter

81 990 000 Ft
családi ház, 148 négyzetméter
Építőanyag:
Tégla
Egész szobák:
3
Ingatlan állapota:
Épülő
Azonosító:
11596725
Értékesítés típusa:
eladó
Ingatlan típusa:
családi ház
Jelleg:
Családi ház
Település:
Nyíregyháza
Alapterület:
148
Ár:
81 990 000 Ft
Fűtés jellege:
Geotermikus
Kor:
1-5 éves
Telekterület típusa:
négyzetméter
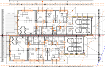
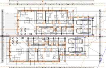
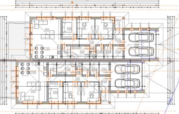
Modern Ikerház Eladó Sóstóhegyen – Magas Műszaki Tartalom és Kényelem Nyíregyháza-Sóstóhegy egyik legkedveltebb, csendes és aszfaltozott utcájában épülő, modern kialakítású ikerház keresi tulajdonosát. Az ingatlan kiváló lakóközösségben található, ahol a nyugalom és a város közelsége találkozik. Az ikerház egyik fele már gazdára talált. Főbb paraméterek: Azonosító: 99227 Alapterület: 148 m² Telekterület: 1400 m² Állapot: Új építésű (építés éve: 2025) Szerkezet: Tégla, 15 cm-es hőszigeteléssel Szobák: Nappali + 3 hálószoba Vizesblokkok: 2 mosdó/fürdő Garázs: Kétállásos, elektromos kapuval felszerelt Fűtés: Modern, energiatakarékos hőszivattyús rendszer Komfortfokozat: Összkomfortos Az ingatlan előnyei: Jelenleg is folyamatban lévő építkezés megbízható, profi kivitelezővel. Tervezett átadás: 2026. június. Egyéni igények: A belső burkolatok és bizonyos megoldások még választhatók. Világos, jól átgondolt terek és nagy terasz a maximális komfortért. Értékálló befektetés energiatakarékos megoldásokkal. Az ingatlan azonosítója: 99659Érdeklődni: +3620/965-8200 Az ingatlan azonosítója: 99659 Érdeklődni: +3620/965-8200
https://ingatlanok.hu/elado/haz/nyiregyhaza/82-millio-ft;148-negyzetmeter;3-szoba;geotermikus-futes/11596725