Az értékesítő:
Mága Richárd
+36 70 624 6177

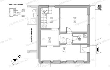
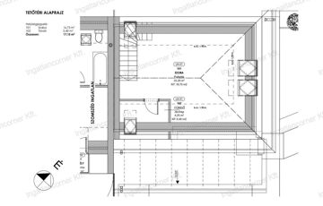
Eladó családi ház Budapest XVIII. ker, 103 900 000 Ft, 100 négyzetméter

103 900 000 Ft
családi ház, 100 négyzetméter
Építőanyag:
Tégla
Egész szobák:
2
Komfort fokozat:
Összkomfort
Ingatlan állapota:
Azonosító:
11596752
Értékesítés típusa:
eladó
Ingatlan típusa:
családi ház
Jelleg:
Családi ház
Település:
Budapest XVIII. ker
Alapterület:
100
Telekterület:
350
Ár:
103 900 000 Ft
Fűtés jellege:
Konvektoros
Telekterület típusa:
négyzetméter
Eladó családi ház – Budapest, XVIII. ker. Podhorszky utca
https://ingatlanok.hu/elado/haz/budapest-xviii-ker/104-millio-ft;100-negyzetmeter;3-szoba;konvektoros-futes/11596752