Az értékesítő:
Szlezák Forgó Barbara
+36 70 620 4097

Eladó lakás Komárom, 50 194 000 Ft, 46 négyzetméter

50 194 000 Ft
lakás, 46 négyzetméter
Építőanyag:
Tégla
Egész szobák:
2
Ingatlan állapota:
Kitűnő
Azonosító:
11596919
Értékesítés típusa:
eladó
Ingatlan típusa:
lakás
Település:
Komárom
Alapterület:
46
Ár:
50 194 000 Ft
Emelet:
Földszint
Fűtés jellege:
Egyéb
Kertkapcsolat:
Van
Kocsibeálló:
Van
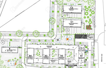
Az Openhouse Tatabánya Ingatlaniroda kínálatában eladó a #179491 hivatkozási számú komáromi társasházi lakás. Komáromban, új építésű lakóparkban kínálunk megvételre különböző méretű, praktikus elosztású lakásokat, amelyek ideálisak saját célra és befektetésként egyaránt. A kínálatban garzon, valamint nappali + 1 hálószobás ingatlanok szerepelnek, kertkapcsolatos, teraszos, loggiás és erkélyes változatokkal. A lakások A, B és C épületekben érhetők el, egységes műszaki alapokkal, szerkezetkész és kulcsrakész kivitelben. Lakásméretek és elrendezés Alapterület: jellemzően 32–53 m² Elosztás: garzon nappali + 1 hálószoba Földszinten: kertkapcsolatos lakások terasszal Emeleten: loggiás vagy erkélyes lakások Szerkezetkész kivitel – műszaki tartalom A szerkezetkész lakások alap műszaki kiépítéssel kerülnek átadásra, amely lehetőséget ad az egyéni befejezésre. Tartalmazza: épületgépészeti és elektromos kiállások fűtés és hűtés: 1 szobás lakás esetén: 1 kültéri + 1 beltéri klíma 1,5–2 szobás lakás esetén: 2 kültéri + 2 beltéri klíma vakolt belső falak aljzat padlófűtéshez előkészítve (padlófóliázva) antracit színű fém nyílászárók (ablakok és erkélyajtók) bejárati ajtó teraszok és loggiák burkolat nélkül kert esetén: durva tereprendezés, telekhatár kijelölése növényzettel Nem tartalmazza: beltéri ajtók konyhabútor, gardróbszekrény világítótestek burkolatok Kulcsrakész kivitel – felszereltség A kulcsrakész lakások azonnal használható állapotban kerülnek átadásra, egységes, modern megjelenéssel. Tartalmazza: standard minőségű parketta és kerámia burkolatok fehér színű festett falak bejárati ajtó beltéri ajtók (fa szerkezet, magasfényű fehér kivitel) antracit színű fém nyílászárók meleg víz ellátás: olasz gyártmányú bojler elektromos törölközőszárítós radiátor a fürdőszobában épített zuhanytálca és zuhanyfal mosdó és csaptelep (tükör és mosdószekrény nélkül) loggiák és teraszok kerámia burkolattal villanykapcsolók és konnektorok fehér standard kivitelben kert esetén: durva tereprendezés, növényes telekhatár kijelölés Nem tartalmazza: konyhabútor gardróbszekrény világítótestek Fűtés és hűtés A lakások fűtését és hűtését Gree Pro Comfort klímaberendezések biztosítják, 2,5–3,5 kW teljesítménnyel, kifejezetten fűtésre optimalizált kivitelben. Árak (A, B és C épületek) Szerkezetkész árak Lakás: 750.000 Ft / m² Loggia: 375.000 Ft / m² Terasz: 120.000 Ft / m² Kert: 19.000 Ft / m² Előkert: 5.000 Ft / m² Kulcsrakész árak Lakás: 950.000 Ft / m² Loggia: 475.000 Ft / m² Terasz: 200.000 Ft / m² Kert: 19.000 Ft / m² Előkert: 5.000 Ft / m² Parkolás Parkolóhely vásárolható: 2.000.000 Ft / db Ha felkeltette érdeklődését ez az eladó komáromi társasházi lakás, vagy bármely más társasházi lakás és bővebb információt szeretne, keressen bizalommal.Hivatkozási szám: #179491 Az Openhouse Tatabánya Ingatlaniroda tagjaként várom Önt az országos hálózatunk teljes kínálatával. A társasházi lakás vásárláshoz hitelt igényelne? Ingyenes hitelközvetítéssel segít Önnek bankfüggetlen hitelszakértőnk. További szolgáltatásainkkal (pl. értékbecslés, energetikai tanúsítvány, jogi háttér) is segítjük Önt a vásárlásban. Az otthon érték. Az ingatlan üzlet. Az energetikai tanúsítvány készítése folyamatban van, amint rendelkezésre áll, úgy azzal a hirdetés frissítésre kerül. 50194000 Ft Szlezák-Forgó Barbara kiemelt értékesítő 0670 620 4097 Referencia szám: 179491
https://ingatlanok.hu/elado/lakas/komarom/50-millio-ft;46-negyzetmeter;2-szoba;tegla-epitesu/11596919