Az értékesítő:
Némethné Judit
+36 30 459 7168

Eladó családi ház Nyíregyháza, Oros, 76 000 000 Ft, 80 négyzetméter

76 000 000 Ft
családi ház, 80 négyzetméter
Építőanyag:
Tégla
Egész szobák:
3
Komfort fokozat:
Összkomfort
Fűtés módja:
Gáz
Ingatlan állapota:
Épülő
Azonosító:
11596994
Értékesítés típusa:
eladó
Ingatlan típusa:
családi ház
Jelleg:
Ikerház
Település:
Nyíregyháza
Alapterület:
80
Telekterület:
480
Ár:
76 000 000 Ft
Szintek száma:
Földszintes
Fűtés jellege:
Cirkó
Elhelyezkedés:
Udvari
Kor:
Új építésű
Terasz:
Van
Erkély:
Nincs
Beépíthető tetőtér:
Nincs
Padlás:
Van
Melléképület:
Nincs
Pince:
Nincs
Klíma:
Van
Bútorozott:
Nem bútorozott
Kábel TV:
Van
Telekterület típusa:
négyzetméter
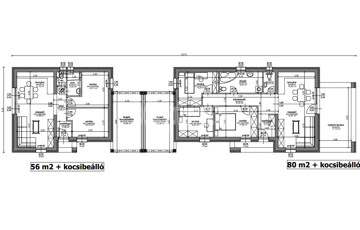
Nyíregyháza, Orosi kivezető fiatal építésű utcájában lefoglalható 2026-be épülő iker ház mindkét oldala. Az ingatlan 80-56 m2-s, a nagyobb három fél szoba, nappali, étkező, amerikai konyha, fürdőszoba és wc egyben, külön wc és szélfogó a kisebb ház kettő fél szoba, nappali+étkező+amerikai konyha egy térben, külön zuhanyzó és wc, szélfogó tartozik hozzájuk, műanyag nyílászárós mely három rétegű üveggel ellátott, villany kazán és padlófűtésű, 30-s porotherm téglából készülnek külsőleg 15 cm-s nikecel szigetelés, belső falak kartonozva, fafödémes rajta 35 cm-s salakgyapot szigetelés a mennyezet fémvázra erősített tűzálló gipszkarton a nyereg tető beton cseréppel fedett alatta párazáró fóliával. A nagyobbik háznak 480 m2-s telekterülete van a kisebbiknek 240 m2-s, mindkettőhöz tartozik egy fedett gépkocsi beálló és térkövezett járda. KÖLTÖZNI LEGHAMARABB 2026 ÉV VÉGE. 80 m2- 76 000 000 Ft. 56-m2- 65 000 000 Ft. AMENNYIBEN FELKELTETTE AZ ÉRDEKLŐDÉSÉT KERESSEN ÉS HA SZÜKSÉGES HITELÜGYINTÉZÉSBEN IS TUDUNK SEGÍTENI.
https://ingatlanok.hu/elado/haz/nyiregyhaza/76-millio-ft;80-negyzetmeter;3-szoba;cirko-futes/11596994