Az értékesítő:
Debre László
+36 20 234 4207

Eladó családi ház Tápiószele, 53 000 000 Ft, 93 négyzetméter

53 000 000 Ft
családi ház, 93 négyzetméter
Építőanyag:
Tégla
Egész szobák:
4
Komfort fokozat:
Összkomfort
Ingatlan állapota:
Kitűnő
Azonosító:
11597229
Értékesítés típusa:
eladó
Ingatlan típusa:
családi ház
Jelleg:
Családi ház
Település:
Tápiószele
Alapterület:
93
Telekterület:
960
Ár:
53 000 000 Ft
Fűtés jellege:
Geotermikus
Erkély:
Van
Bútorozott:
Nem bútorozott
Telekterület típusa:
négyzetméter
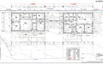
<p>A CASANETWORK CEGLÉD eladásra kínálja - látványtervek alapján -  a 174602213  számú Pest megyében, Tápiószele városban lévő  nyugodt utcában, egy 960 m²-es, megosztásra kerülő telken kínálunk eladásra két, egymástól fedett kocsibeállóval elválasztott, közvetlenül nem érintkező ikerházfelet, <strong>két külön utcafrontos bejárattal</strong>.</p><p> A házak alapterülete 93 m2.</p><p> A HÁZ kivitelezése maximum 10 hónapot vesz igénybe az előszerződést követően.</p><p> - Ár: /ikerfél </p><p>-  Teljesen önálló lakóegységek, külön bejárattal és saját kertrésszel (telekmegosztás után)</p><p>-  A két lakást fedett autóbeálló választja el, így nincs közös falszomszéd! </p><p>- Korszerű levegő–víz hőszivattyús fűtés – padlófűtés minden helyiségben Víz, csatorna, villany – bekötve, gázbekötés opció lehet </p><p>- Klíma és annak előkészítése opcionálisan kérhető Hideg- és melegburkolatok szabadon választhatók 3000 Ft/m² keretig</p><p>- Most még alakíthatod a belső tereket és anyagokat a saját ízlésed szerint! </p><p>- Lokáció – élhető mindennapok Budapest kb. 1 óra Iskola, óvoda, bolt, orvosi rendelő a közelben Csendes utca, zöldövezeti hangulat</p><p>Megtekintése előre egyeztetett időpontban lehetséges!</p><p>Amennyiben a174602213 számú, a  CASANETWORK CEGLÉD által kínált CSALÁDI HÁZ vagy bármely a kínálatunkban található INGATLAN felkeltette érdeklődését, hívjon a megadott telefonszámon. /A hirdetésben szereplő információk a megbízótól kapott adatok alapján készültek, pontosságukért felelősséget nem vállalunk!/</p><p>Irodánk teljes körű segítséget tud nyújtani hitelekhez és az összes államilag finanszírozott családi támogatásokhoz!</p><p>Kollégám díjmentes, bank semleges hitel ügyintézéssel áll rendelkezésre.</p><p>CASANETWORK - Ingatlanban otthon vagyunk!</p><br />
https://ingatlanok.hu/elado/haz/tapioszele/53-millio-ft;93-negyzetmeter;4-szoba;geotermikus-futes/11597229