Az értékesítő:
Veligdán Gabriella
+36 70 415 0679

Eladó lakás Kecskemét, 108 000 000 Ft, 118 négyzetméter

108 000 000 Ft
lakás, 118 négyzetméter
Egész szobák:
4
Ingatlan állapota:
Épülő
Azonosító:
11598055
Értékesítés típusa:
eladó
Ingatlan típusa:
lakás
Település:
Kecskemét
Alapterület:
118
Ár:
108 000 000 Ft
Emelet:
Földszint
Fűtés jellege:
Cirkó
Építési év:
Új építésű
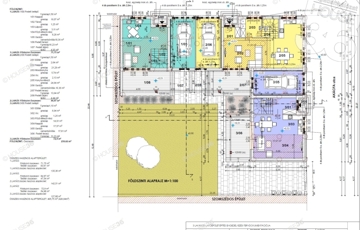
Új építésű otthon Máriaváros szívében – Kecskemét belvárosától pár perc sétára! Eladó egy exkluzív, kétszintes lakás egy mindössze 3 lakásos, új építésű társasházban, Kecskemét egyik legkedveltebb városrészében, Máriavárosban! 3.sz. lakás főbb jellemzők:(alaprajzon lila színnel jelölve) 118 M2Lakótér, Tágas nappali + 3 hálószoba 2 fürdőszoba, praktikus elrendezéssel Lakáson belüli 2 szint – modern, otthonos térélmény 11 M2fedett terasz – kiváló helyszín a reggeli kávéhoz vagy esti pihenéshez Kis kertkapcsolat – saját zöld terület Saját garázs Minőségi kivitelezés és számos extra felszereltség Lokáció: Kecskemét központjától mindössze néhány perc séta – csendes, rendezett környezetben. Átadás: A szerződéskötéstől számított 12 hónapon belül. Ár: Lakás: 108.000.000 Ft Garázs (kötelezően a lakással együtt): 9.500.000 Ft Teljes ár: 117.500.000 Ft Ne hagyja ki ezt a kivételes lehetőséget – új, modern otthon Máriaváros legjobb részén, központhoz közel, mégis nyugodt környezetben! Érdeklődés és megtekintés időpont-egyeztetéssel! ​ Figyelem az adatlap megbízóinktól kapott adatok alapján készült, pontosságáért felelősséget nem tudunk vállalni! A HOUSE36 kínálatában található összes ingatlannal kapcsolatban tudok felvilágosítást nyújtani! Szolgáltatásaink Kereső ügyfeleink számára INGYENESEK! 108000000 Ft Az iroda legfrissebb, aktuális kínálatát a HOUSE36 saját weboldalán találja. Referencia szám: 3619976
https://ingatlanok.hu/elado/lakas/kecskemet/108-millio-ft;118-negyzetmeter;4-szoba;nincs-megadva-epitesu/11598055