Az értékesítő:
Füredi Felícia
+36 30 828 2621

Eladó lakás Budapest XIII. ker, 53 990 000 Ft, 39 négyzetméter

53 990 000 Ft
lakás, 39 négyzetméter
Építőanyag:
Tégla
Egész szobák:
1
Komfort fokozat:
Összkomfort
Ingatlan állapota:
Felújítandó
Azonosító:
11598210
Értékesítés típusa:
eladó
Ingatlan típusa:
lakás
Település:
Budapest XIII. ker
Alapterület:
39
Ár:
53 990 000 Ft
Tulajdonviszony:
Saját
Emelet:
2. emelet
Fűtés jellege:
Konvektoros
Kilátás:
udvari
Építési év:
50 évesnél régebbi
Erkély:
Nincs
Pince:
Van
Tároló:
Nincs
Lift:
Nincs
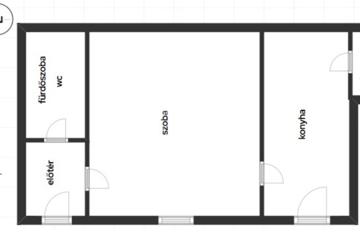
Eladó felújítandó téglaépítésű lakás Budapest 13. kerületében a Zsilip utcában. A lakás a társasház 2. emeletén található, 39 m² alapterülettel. Megközelítése függő folyosóról történik, két külön bejáraton keresztül. Az egyik bejáraton egy előszobába érkezünk, ahonnan külön nyílik a szoba, valamint a fürdőszoba WC- vel. A konyha megközelíthető a szobán keresztül, illetve a másik bejárati ajtón át is. A konyhából egy praktikus kis kamra nyílik. A fűtést gázkonvektor biztosítja, a melegvíz ellátásról a gázkazán gondoskodik. A lakásból a kilátás parkosított, csendes belső udvarra néző, ahol Hatalmas fa, kiülésre alkalmas padok és gondozott kert várja a lakókat. Ideális választás lehet befektetőknek, vagy azok számára akik csendes , zöldkertes, urbanisztikus környezetben szeretnének élni. Az infrastruktúra és a közlekedés kiváló az M3 metró néhány perc alatt elérhető. ID:391989
https://ingatlanok.hu/elado/lakas/budapest-xiii-ker/54-millio-ft;39-negyzetmeter;1-szoba;tegla-epitesu/11598210