Az értékesítő:
Kovács Rita
+36 70 412 5441

Eladó családi ház Nagykanizsa, 154 900 000 Ft, 390 négyzetméter

154 900 000 Ft
családi ház, 390 négyzetméter
Építőanyag:
Tégla
Egész szobák:
8
Fűtés módja:
Gáz
Ingatlan állapota:
Kitűnő
Azonosító:
11598654
Értékesítés típusa:
eladó
Ingatlan típusa:
családi ház
Jelleg:
Családi ház
Település:
Nagykanizsa
Alapterület:
390
Telekterület:
607
Ár:
154 900 000 Ft
Szintek száma:
Földszintes
Fűtés jellege:
Cirkó
Kor:
21-50 éves
Erkély:
Van
Telekterület típusa:
négyzetméter
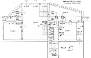
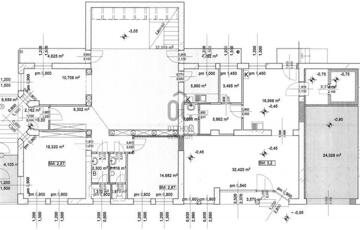
Nagykanizsa belvárosában kínálom megvételre az alábbi társasházzá alakított családi házat, amelyben jelenleg irodák és üzlethelyiség garázzsal van kialakítva. Ingatlan jellemzői: - 607 m2-es telken helyezkedik el, ahol belső zárt udvar található térkő burkolással. - 8 szoba méretű helyiség van jelenleg létrehozva, amelyek iroda funkciót töltenek be, 2 db erkély, egy terasz, garázs, tárolók, vizesblokkok, közlekedők és egy üzlethelyiség. - Társasházzá alakítás során 6 külön helyrajzi számon, 4 különálló lakás, tároló, garázs és közös helyiségek lettek megtervezve. - A képek között található fekete-fehér alaprajzok a jelenlegi, a színesek a lehetséges, kialakítható tereket mutatják. - A legnagyobb lakás 252 m2-es, a következő 57,7 m2-es, a harmadik 44,3 m2-es, a negyedik, legkisebb pedig 29,1 m2. - Ezeken kívül egy közlekedő, raktár, terasz lett leválasztva, 33,2 m2 nagyságban, illetve egy garázs, ami 23,6 m2. - A közös helyiségek mérete 22,5 m2. - Jelenleg 390 m2 van használatban, de a lehetséges, megtervezett bővítéssel a tetőtérben, ez 463 m2-re növelhető. - A vizesblokkok a mostani használatnak megfelelően WC-kézmosó helyiségeket jelentenek. - Az ingatlanban minden közmű rendelkezésre áll. - A villany és gázórákból 2-2, a vízórákból 3 db van jelenleg. Az üzlethelyiség és az irodák külön mérésen vannak. - Fűtése 2 db gázkazánról üzemel. - Hűtéséről klímaberendezések gondoskodnak. - Az épület kívül, belül kiváló állapotban van, teljesen felújított. - Beton alapokon, tégla építésű, beton födémmel, tetőtéri beépítési lehetőséggel. - Tető héjazata cserép fedésű. - A ház víz szigetelést és külső hőszigetelést kapott. - A zárt udvarban több autó számára a parkolás biztosított. Irodánk teljes körű szolgáltatást nyújt kereső ügyfeleinek. Szakszerű tanácsadással, ingyenes CSOK és hitelügyintézéssel, energetikai tanúsítvány elkészítésével és kedvező díjszabású ügyvéddel nyújtunk segítséget!
https://ingatlanok.hu/elado/haz/nagykanizsa/155-millio-ft;390-negyzetmeter;8-szoba;cirko-futes/11598654