Az értékesítő:
Tokodi Ildikó
+36 30 327 5386

Eladó családi ház Nyíregyháza, Belváros, 66 900 000 Ft, 90 négyzetméter

66 900 000 Ft
családi ház, 90 négyzetméter
Építőanyag:
Tégla
Egész szobák:
2
Ingatlan állapota:
Felújított
Azonosító:
11598723
Értékesítés típusa:
eladó
Ingatlan típusa:
családi ház
Jelleg:
Családi ház
Település:
Nyíregyháza
Alapterület:
90
Telekterület:
365
Ár:
66 900 000 Ft
Fűtés jellege:
Cirkó
Telekterület típusa:
négyzetméter
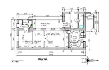
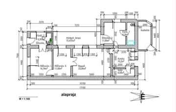
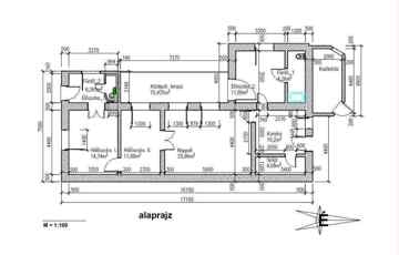
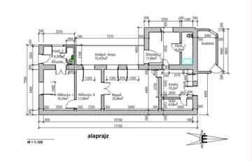
Teljes körűen felújított családi ház Nyíregyháza Belvárosában Nyíregyháza Belvárosának szívében eladó egy kiváló állapotú, tégla építésű, nettó 90 m²-es családi ház, amely a belvárosi elhelyezkedést nyugodt, kényelmes élettérrel ötvözi. Az ingatlan minden részletében átgondolt, praktikus kialakítású, azonnal költözhető állapotban várja új tulajdonosát. A házban két különnyíló szoba és egy tágas nappali található, az ablakos, önálló konyhához kamra/spájz is kapcsolódik. A kényelmet két fürdőszoba és két WC biztosítja. A helyiségek járólap és laminált parketta burkolattal készültek, a műanyag nyílászárók spalettás árnyékolással felszereltek. A fűtés egyedi gázfűtéssel, valamint vegyes tüzelésű kazánnal és puffertartállyal megoldott, az épület 10 cm-es homlokzati hőszigeteléssel rendelkezik. A 365 m²-es telken nagyméretű, fedett terasz, valamint háromállásos, fedett autóbeálló kapott helyet, ami ritka adottság belvárosi környezetben. Az ingatlan ideális választás családoknak, illetve mindazok számára, akik a belváros közelségét nem szeretnék feladni, mégis önálló, nyugodt otthonra vágynak. Energetikai besorolás: tulajdonos tájékoztatása szerint folyamatban van, illetve komoly érdeklődés esetén rövid időn belül elkészíttetésre kerül.  Az ingatlan azonosítója: 99750Érdeklődni: +36303275386 Az ingatlan azonosítója: 99750 Érdeklődni: +36303275386
https://ingatlanok.hu/elado/haz/nyiregyhaza/67-millio-ft;90-negyzetmeter;2-szoba;cirko-futes/11598723