Az értékesítő:
Edvi Zsuzsanna
+36 20 277 7237

Eladó családi ház Győrzámoly, 94 900 000 Ft, 93 négyzetméter

94 900 000 Ft
családi ház, 93 négyzetméter
Egész szobák:
4
Ingatlan állapota:
Átlagos
Azonosító:
11598995
Értékesítés típusa:
eladó
Ingatlan típusa:
családi ház
Jelleg:
Családi ház
Település:
Győrzámoly
Alapterület:
93
Telekterület:
778
Ár:
94 900 000 Ft
Fűtés jellege:
Cirkó
Kor:
Új építésű
Terasz:
Van
Erkély:
Nincs
Telekterület típusa:
négyzetméter
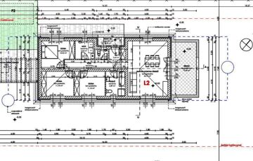
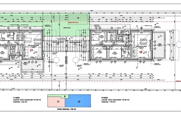
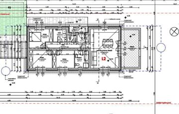
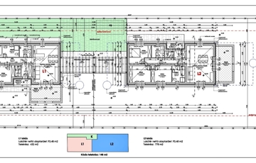
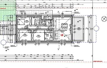
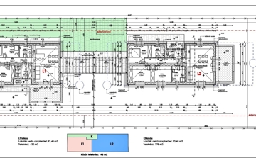
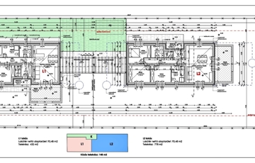
Ha új építésű házat keres Győr közelében, ilyen áron már alig talál. Győrzámoly csendes utcájában épülő ikerház 1. lakása most még elérhető – 432 m² saját telekhányaddal, leválasztható kertrésszel. Most még elérhető! Győrzámoly csendes utcájában épülő modern ház L2. lakása eladó – kialakításának köszönhetően szinte önálló családi ház, 778 m² saját telekkel. A 93,48 m²-es, átgondolt elrendezésű otthon: amerikai konyhás nappali + 3 hálószoba, fürdő WC-vel, külön WC, háztartási helyiség, előszoba és közlekedő. 19,6 m² terasz 3,28 m² fedett bejárat 18 m² pergolás beálló A két épület pergolával fedett kocsibeállókkal kapcsolódik, mindkét telekrész kerítéssel leválasztható. 148 m2-es közös bejáró biztosítja a kocsibeállókhoz történő bejutást. A projekt egy közel 2000 m²-es telken valósul meg. Ár: 82,9 millió Ft emelt szintű fűtéskész állapotban, 5% ÁFÁ-val. A telekhányad 30 millió Ft, melyet a vételár tartalmaz. ILLETÉKMENTES! CSOK és kamattámogatott hitel, Otthon Start hitel igényelhető, díjmentes ügyintézéssel. Műszaki tartalom: – 30-as N+F tégla falazat – 15 cm homlokzati hőszigetelés – 3 rétegű üvegezésű nyílászárók – 30 cm födémszigetelés – kondenzációs gázkazán, minden helyiségben padlófűtéssel – Terran tetőcserép Megbízható kivitelező, referenciaházak megtekinthetők. Kulcsrakész befejezés egyedi megállapodás alapján kérhető. Várható átadás: 2027 tavasz. Győr vonzáskörzetének egyik legkeresettebb településén az ilyen ár-érték arányú projektek gyorsan gazdára találnak. Hívjon most: 20/2777237
https://ingatlanok.hu/elado/haz/gyorzamoly/95-millio-ft;93-negyzetmeter;4-szoba;cirko-futes/11598995