Az értékesítő:
Vede Casa Kft.
+36 30 109 6915

Eladó családi ház Göd, 139 900 000 Ft, 122 négyzetméter

139 900 000 Ft
családi ház, 122 négyzetméter
Egész szobák:
4
Ingatlan állapota:
Épülő
Azonosító:
11599079
Értékesítés típusa:
eladó
Ingatlan típusa:
családi ház
Jelleg:
Családi ház
Település:
Göd
Alapterület:
122
Telekterület:
450
Ár:
139 900 000 Ft
Szintek száma:
Földszintes
Fűtés jellege:
Egyéb
Telekterület típusa:
négyzetméter
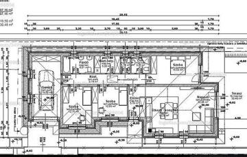
Göd központi részén eladó egy 122 nm-es, újépítésű családi ház, 450 nm-es saját kerttel. Az ingatlan 30-as téglából épül, 15 cm-es EPS szigeteléssel és háromrétegű műanyag nyílászárókkal, amelyek stabil és jól szigetelt otthont biztosítanak. A fűtést hőszivattyú látja el, a teljes ház padlófűtéses. Az elrendezés átgondolt: amerikai konyhás nappali, négy szoba, háztartási helyiség, egy zuhanyzós és egy kádas fürdőszoba szolgálja a kényelmet. A cserépfedés tartós megoldást ad, a tervezett garázs helyett pedig igény esetén egy plusz szoba is kialakítható. Az ingatlan jó elhelyezkedése és modern műszaki tartalma hosszú távon is kényelmes, jól használható otthont biztosít. várható átadás: 2026. október Jelen esetben foglalózás után, hideg meleg burkolatok, beltéri nyílászárók, szaniterek választhatóak melyek a meghirdetett ár részét képezik a belső műszaki tartalom szerint Megtekintés érdekében vagy felmerülő kérdés esetén keresse irodánkat. A hirdetésben szereplő adatok tájékoztató jellegűek. Az ingatlan hitelre is megvásárolható. Bankfüggetlen tanácsadóink, az ország összes pénzintézete közül gyorsan és gördülékenyen találja meg az Önnek legmegfelelőbb konstrukciót, egyedi kedvezményekkel. A hitel és az ingatlan közvetítés vevőink részére díjmentes.
https://ingatlanok.hu/elado/haz/god/140-millio-ft;122-negyzetmeter;4-szoba;egyeb-futes/11599079