Az értékesítő:
Balogh Zsuzsa
+36 20 976 6081

Eladó lakás Budapest VII. ker, 101 500 000 Ft, 76 négyzetméter

101 500 000 Ft
lakás, 76 négyzetméter
Építőanyag:
Tégla
Egész szobák:
3
Komfort fokozat:
Összkomfort
Ingatlan állapota:
Azonosító:
11599226
Értékesítés típusa:
eladó
Ingatlan típusa:
lakás
Település:
Budapest VII. ker
Alapterület:
76
Ár:
101 500 000 Ft
Tulajdonviszony:
Saját
Emelet:
3. emelet
Fűtés jellege:
Cirkó
Kilátás:
utcai
Építési év:
50 évesnél régebbi
Erkély:
Nincs
Pince:
Nincs
Tároló:
Nincs
Lift:
Nincs
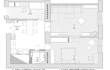
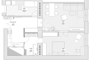
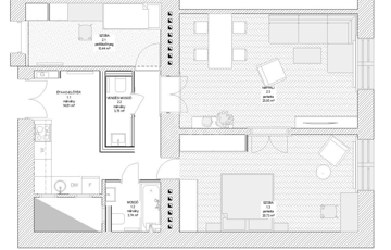
Eladó pár éve teljeskörűen felújított, napfényes, 76 m² lakás. Jelenleg KÉT külön bejáratú LAKÁSként funkcionál. Méretük: 39,66 m² és 36,59 m². Városliget, Keleti Pályaudvar 5 perc séta – Ideális otthonnak, irodának, befektetésnek! Ne hagyja ki ezt a különleges lehetőséget! Az ingatlan ideális fiatal pároknak, egyetemista testvérpárnak, otthonról dolgozóknak, akik szeretnék elkülöníteni a lakóteret az irodától. Kiváló választás befektetésnek, hiszen a két külön bejáratú lakás azonnali két lakbér bevételt biztosít. Igény esetén a két lakás könnyen egybe is nyitható, így egy 3 szobás, tágas lakást kapunk. Átalakításnál múszaki rész kiépített, nem igényel plusz munkát. 1. lakás: 39,66 m² Szoba: 23,93 m² Előtér és konyha: 11,98 m² Fürdőszoba: 3,75 m² 2. lakás: 36,59 m² Szoba: 20,73 m² Előtér és konyha: 12,24 m² Fürdőszoba: 3,62 m² Miért érdemes ezt választani? ✅Két külön bérlemény, dupla bevétel: Az ingatlan jelenleg két lakásként üzemel, így az új tulajdonos azonnal két bérleti díjra számíthat. ✅Tökéletes otthoni iroda elrendezés: Egyik lakás otthonnak, a másik pedig irodának használható – ideális azoknak, akik otthonról dolgoznak. ✅Kiváló közlekedés: A Keleti Pályaudvar, Városliget, Garay téri piac, üzletek, boltok, éttermek, kórház, iskolák, mind csupán pár percre találhatóak gyalogosan is. ✅Friss felújítás, magas műszaki tartalom: A lakás gépészeti és elektromos rendszere teljes körűen felújításra került, beleértve a Bosch kondenzációs kazánt, új villanyhálózatot és bővített áramkapacitást. Az új konyha, márvány padlóburkolatok, és strapabíró felületek mind hozzájárulnak a lakás prémium érzetéhez. A lakás műszaki tartalma: ✅Új Bosch kondenzációs kazán, duplacsöves kémény ✅Teljes elektromos és gépészeti felújítás ✅ IKEA konyha tömörfa munkalappal ✅Márvány padlóburkolatok a konyhában és a fürdőszobákban ✅Két vízóra, új radiátorok szabályozószelepekkel Tekintse meg ezt a kiváló paraméterekkel, adottságokkal rendelkező ingatlant, amely egy tisztasági festés után azonnal költözhető, kiadható. Bútorokkal, gépesítve, számtalan lehetőséggel! Rugalmasan nézhető. Hívjon, kérdezzen, nézzük meg! B. Zs.
https://ingatlanok.hu/elado/lakas/budapest-vii-ker/102-millio-ft;76-negyzetmeter;3-szoba;tegla-epitesu/11599226