Az értékesítő:
Dávid Gábor
+36 70 395 9545

Eladó családi ház Budapest XX. ker, 279 000 000 Ft, 370 négyzetméter

279 000 000 Ft
családi ház, 370 négyzetméter
Építőanyag:
Tégla
Egész szobák:
16
Ingatlan állapota:
Átlagos
Azonosító:
11599345
Értékesítés típusa:
eladó
Ingatlan típusa:
családi ház
Jelleg:
Családi ház
Település:
Budapest XX. ker
Alapterület:
370
Telekterület:
535
Ár:
279 000 000 Ft
Fűtés jellege:
Cirkó
Terasz:
Nincs
Erkély:
Nincs
Beépíthető tetőtér:
Nincs
Melléképület:
Nincs
Pince:
Nincs
Klíma:
Nincs
Telekterület típusa:
négyzetméter
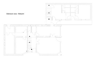
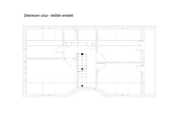
NAGY HOZAMÚ FEJLESZTÉSI LEHETŐSÉG PESTERZSÉBETEN – DEBRECEN UTCÁBAN Budapest XX. kerületében, Pesterzsébeten eladó egy nettó 370 m² alapterületű, 3 szintes családi ház + 2 szintes melléképület, 535 m²-es telken, amely kivételes adottságai miatt kimondottan fejlesztési célra ideális, valamint munkásszálló kialakítására is kifejezetten alkalmas. Az ingatlan 16 szobával és 8 fürdőszobával rendelkezik, így szerkezetileg alkalmas gyors átalakításra, lakások kialakítására vagy akár azonnali munkásszálló üzemeltetésre. Az épület az 1990-es években téglából épült, 2021-ben jelentős felújításon esett át: -teljes fűtési rendszer cseréje -teljes villamos hálózat csere -homlokzat felújítása BEFEKTETÉSI POTENCIÁL 1. Munkásszállóként üzemeltetve Várható kapacitás: 30–40 fő Piaci díj: 90–130.000 Ft/fő/hó ➡ Becsült havi bevétel: ~2,7 – 5,2 millió Ft ➡ Éves bevétel: ~32 – 62 millió Ft A környéken ipari és logisztikai létesítmények miatt folyamatos a kereslet. 2. 8 külön lakás kialakítása és értékesítése (projekt lehetőség) Az ingatlan mérete lehetővé teszi kb. 8 db 30–55 m²-es lakás kialakítását, majd külön értékesítését. A lakások kialakítására koncepcióterv rendelkezésre áll. Várható eladási ár a környéken: ~1.100.000 - 1.200.000 Ft/m² ➡ Értékesíthető terület (kb.): 340 – 360 m² ➡ Várható árbevétel: ~ 400 millió Ft Ez klasszikus „feloszt–elad” projektként rövid időn belül realizálható profitot biztosíthat, különösen mivel az alap gépészet már korszerűsített. AJÁNLOTT HASZNOSÍTÁS -társasház projekt -befektetési fejlesztés -munkásszálló -több generációs ingatlan Nagy alapterület + sok vizesblokk + felújított gépészet = alacsony kialakítási költség, gyors megtérülés. További információért és megtekintésért keressen bizalommal! (További képekért és információkért kérem hívjon!)
https://ingatlanok.hu/elado/haz/budapest-xx-ker/279-millio-ft;370-negyzetmeter;16-szoba;cirko-futes/11599345