Az értékesítő:
Kálmán Orsolya
+36 70 413 6541

Eladó családi ház Vecsés, 125 000 000 Ft, 126 négyzetméter

125 000 000 Ft
családi ház, 126 négyzetméter
Építőanyag:
Tégla
Egész szobák:
4
Fűtés módja:
Hőszivattyú
Ingatlan állapota:
Épülő
Azonosító:
11599380
Értékesítés típusa:
eladó
Ingatlan típusa:
családi ház
Jelleg:
Ikerház
Település:
Vecsés
Alapterület:
126
Telekterület:
307
Ár:
125 000 000 Ft
Szintek száma:
Földszintes
Fűtés jellege:
Villany
Kor:
Új építésű
Erkély:
Van
Telekterület típusa:
négyzetméter
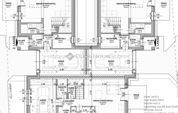
Vecsés legmodernebb fiatalos, családias részénVecsésen modern környezetben eladó új építésű családi házak.A kivitelező sok éves múlttal és rengeteg elégedett ügyféllel rendelkezik, referenciák akár itt a lakóparkban is megtekinthetőek.1-es ház127 négyzetméter hasznos lakótérrel rendelkezik, mely egy 307 négyzetméteres telken fekszik. A földszinten a nappaliból egy 8 négyzetméteres teraszon keresztül juthatunk ki a saját privát kertünkbe, továbbá az emeleten egy 8,19 négyzetméteres tetőterasz is tartozik hozzá.Nappali+4 hálószoba+ gardrób, 21nm garázs, szülőiháló.22 méter saját utcafront!2-es ház117,03 négyzetméter hasznos lakótérrel rendelkezik, mely egy 307 négyzetméteres telken fekszik. A földszinten a nappaliból egy 8,62 négyzetméteres teraszon keresztül juthatunk ki a saját privát kertünkbe, továbbá az emeleten egy 6,20 négyzetméteres erkély is tartozik hozzá.Nappali+3hálószoba+gardrób, 21nm garázs, szülőiháló.3-as ház117,03 négyzetméter hasznos lakótérrel rendelkezik, mely egy 307 négyzetméteres telken fekszik. A földszinten a nappaliból egy 8,62 négyzetméteres teraszon keresztül juthatunk ki a saját privát kertünkbe, továbbá az emeleten egy 6,20 négyzetméteres erkély is tartozik hozzá.Nappali+3hálószoba+gardrób, 21nm garázs, szülői háló.Műszaki adatok:-30as Prototherm tégla falazat-15cm-es homlokzati szigetelés-18-cm-es szigetelés az aljzat felől-8cm-es szigetelés a födém felől-3 rétegű műanyag nyílászárók kívülről antracit belülről fehér színűek-elektromos garázskapu antracit színnel-Hőszivattyús fűtés/hűtés (fan coil)-2 fürdőszoba-mosókonyha-riasztó és kaputelefon kiállás-térkövezett autóbeállóBurkolatok/beltéri ajtók/szaniterek még választhatóak.A lakópark teljesen új modern környezet, játszótérrel, fákkal. Közlekedést tekintve autóval a Gyorsforgalmi út, Üllői út, Gyömrői út az M0ás és a 4-es út 3perc alatt megközelíthető.Tömegközlekedés 3perc sétára Volánbusz Kőbánya Kispest vasútállomásig közlekedik, 10perc sétára Vecsési vonatállomás, melyről a Nyugati pályaudvarig közlekednek a vonatok.Felkeltette érdeklődését keressen bizalommal a hét bármely napján!Átadás: 2026.IV. negyedév
https://ingatlanok.hu/elado/haz/vecses/125-millio-ft;126-negyzetmeter;5-szoba;villany-futes/11599380