Az értékesítő:
Gecse Balázs
+36 70 336 9901

Eladó telek/földterület Budapest XV. ker, 75 000 000 Ft, 464 Négyzetméter

75 000 000 Ft
telek/földterület, 464 Négyzetméter
Azonosító:
11599808
Értékesítés típusa:
eladó
Ingatlan típusa:
telek/földterület
Jelleg:
Belterület
Település:
Budapest XV. ker
Telekterület:
464
Ár:
75 000 000 Ft
Telekterület típusa:
Négyzetméter
Víz:
Utcában
Gáz:
Utcában
Villany:
Telken belül
Csatorna:
Telken belül
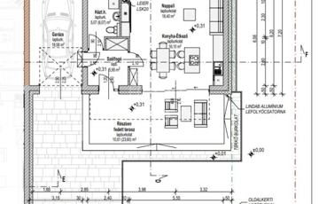
Azonnal indítható építési projekt Rákospalota–Palotaújfaluban Eladásra kínálunk egy 464 m²-es építési telket Rákospalota–Palotaújfalu új parcellázású, rendezett részén, ahol kizárólag új építésű lakóingatlanok találhatók. A telek teljes körű dokumentációval, jogerős építési engedéllyel és kész tervekkel rendelkezik. A tervek szerint egy modern ikerház épül, melynek kivitelezése azonnal megkezdhető. A telek már az ikerház tervei alapján megosztásra került, így a kialakítás maximálisan illeszkedik a jóváhagyott épülethez. Fontos: a telken kizárólag a meglévő tervdokumentációban szereplő épület valósítható meg. A belső terek ugyanakkor szabadon alakíthatók (falak, burkolatok, színek), engedélyköteles módosításra nincs lehetőség. A tervezett lakrész 141,77 m² összterületű: – földszinten amerikai konyhás nappali és háztartási helyiség – emeleten három szoba, fürdőszoba és lépcsőház – az ingatlanhoz különálló garázs is tartozik Az ikerház két fele szerkezetileg összekapcsolódik, ezért az építkezést egy időben szükséges megkezdeni. Olyan vevőt keresünk, aki a szerződéskötést követően rövid időn belül elindítaná a kivitelezést. A tervezés során kiemelt szempont volt az intimitás és a nyugalom, így a lakások minimális áthallással, jól szeparált módon kerülnek kialakításra. A telek csendes, zöld környezetben helyezkedik el, mégis kiváló közlekedéssel: gyors elérés a belváros felé, valamint könnyű kapcsolat az M3-as és M0-s autópályákhoz, autóval és tömegközlekedéssel egyaránt. A telek kizárólag a meglévő tervekkel és engedélyekkel együtt eladó – ideális választás befektetőknek vagy építkezni vágyóknak, akik egy előre előkészített, azonnal indítható projektet keresnek. Ha felkeltette érdeklődését, keressen bizalommal! GB
https://ingatlanok.hu/elado/telek_foldterulet/budapest-xv-ker/75-millio-ft;464-negyzetmeter;epitesi-telek-besorolas;van-kozmu/11599808