Az értékesítő:
Kósa Edina
+36 20 231 1477

Eladó családi ház Érd, 217 000 000 Ft, 217 négyzetméter

217 000 000 Ft
családi ház, 217 négyzetméter
Egész szobák:
5
Ingatlan állapota:
Kitűnő
Azonosító:
11599831
Értékesítés típusa:
eladó
Ingatlan típusa:
családi ház
Jelleg:
Családi ház
Település:
Érd
Alapterület:
217
Telekterület:
850
Ár:
217 000 000 Ft
Terasz:
Van
Erkély:
Van
Melléképület:
Nincs
Pince:
Nincs
Parketta:
Van
Kábel TV:
Nincs
Telekterület típusa:
négyzetméter
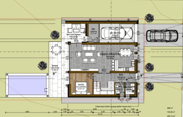
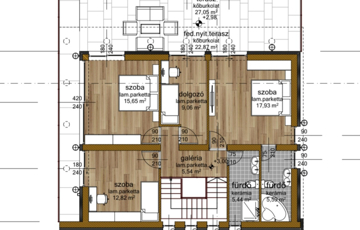
FENYVES-PARKVÁROSBAN, TERMÉSZET KÖZELI, LUXUS CSALÁDI HÁZ! Ha luxusra, természetközeli nyugalomra vágyik, ez a vadonatúj, prémium minőségű otthon tökéletes választás! Ez a ház nem csupán egy ingatlan – ez egy életforma. A prémium kivitelezés, a természet közelsége és a modern technológia találkozása. A fejlesztő kiemelten kezeli a projektet, a tőle megszokott magas minőségben épít, számos referenciával rendelkezik. A mai kor követelményeinek maximálisan eleget téve építik meg az ingatlanokat. TÖKÉLETES VÁLASZTÁS A NAGYVÁROSOK ZAJÁTÓL TÁVOLI, ENERGIAHATÉKONY ÁLOMOTTHONT KERESŐK SZÁMÁRA! Szeretné meglepni szeretteit vagy biztonságban tudni a pénzét? Akkor ha ön is így gondolja ajánlanám ezt az ingatlant!! JÖJJENEK, NÉZZENEK KÖRÜL, HOGYAN IS ALAKÍTANÁK KI AZ ÖNÖK IGÉNYEI SZERINT SZÉP OTTHONNÁ!! Kérem hívjon, találkozzunk a helyszínen, hogy körbesétálhassunk a nyugodt , szép környezetben megépülő ingatlant, alakítsuk ki együtt az Ön és kedves családja szép új otthonát :) Az energiahatékonyság jegyében HŐSZIVATTYÚ rendszert alkalmazunk, mely nagyon ENERGIATAKARÉKOS FELHASZNÁLÁST tesz lehetővé. Rövid műszaki ismertető: •vasbeton sávalap •30 cm vastag Porotherm teherhordó falak •10cm vastag Porotherm belső válaszfalak •zárófödém monolit vasbeton szerkezet •homlokzati szigetelés 15cm vastag Dryvit rendszerű hőszigetelés •nyílászárók 3 rétegű 6 légkamrás műanyag szerkezetű elektromos redőnyökkel Miért kiemelkedő ez az ingatlan? - Nem ikerház, nem sorház, nem lakópark. - Ez egy különálló családi ház, saját telekkel, teljes intimitással. - Beépült, nyugodt környék. - Nincs több építkezés, nem kell betonkeverők és munkások között laknod. - Minden benne van az árban, nincsenek rejtett pluszköltségek, az extrák itt alaptartozékok. - Okos és átgondolt alaprajz. - Nappali, étkező, konyha egy térben, természetes fény mindenhol. -Fedett terasz-a nappaliból - Szülői lakrész külön gardróbbal, saját fürdővel. - garázs -A kivitelezés / építkezés tervezett befejezése -2026 vége -Az ár tartalmazza: -Hideg/Meleg burkolatok (megbeszélés szerinti összeghatárig) -Szaniterek 1millió forint értékhatárig -Hőszivattyús fűtésrendszer -Beltéri ajtók 80ft/db -Elektromos redőny -Elektromos gárázskapu -Elektromos nagykapu -H tarifa -klíma Ez az ingatlanok részleteiben igen gazdag elgondolás szerint lesznek megépítve. Tapasztalt a kivitelező cég, így megannyi referencia munkával igazolható, hogy a megálmodástól a megvalósításhoz vezető út nem csak egy illúzió. Az építkezés során szigorúan csak a legmagasabb minőségű anyagokat fogja a kivitelező felhasználni, hogy igazán exkluzív otthont hozzon létre. Mindemellett számítunk az Ön igényeinek bevonásaira is, burkolatok és szaniterek és egyéb kiegészítők tekintetében. Aki a csendre, nyugalomra vágyik a zöldövezetben, luxus környezetben szeretne élni, de fontos neki, hogy elérhető távolságra legyen a város nyüzsgése is, annak kiváló választás ez a környék. HÍVJON FEL, KÉRJEN EGY IDŐPONTOT, JÖJJÖN, NÉZZE MEG! Nekem ebben az ingatlanban az elhelyezkedése mellett, a formálhatósága és a benne rejlő rengeteg lehetőség tetszik a legjobban. Ha Ön is így látja, hívjon, nézze meg, legyen az új tulajdonosa mielőbb! Nem fogja megbánni! Szép napot sikeres vásárlást kívánok! Köszönöm hogy időt szánt a hirdetésemre!
https://ingatlanok.hu/elado/haz/erd/217-millio-ft;217-negyzetmeter;6-szoba;nincs-megadva-futes/11599831