Az értékesítő:
Molnár Andrea
+36 70 548 8880

Eladó lakás Budapest XIX. ker, 114 000 000 Ft, 82 négyzetméter

114 000 000 Ft
lakás, 82 négyzetméter
Építőanyag:
Tégla
Egész szobák:
3
Komfort fokozat:
Összkomfort
Ingatlan állapota:
Kitűnő
Azonosító:
11600342
Értékesítés típusa:
eladó
Ingatlan típusa:
lakás
Település:
Budapest XIX. ker
Alapterület:
82
Ár:
114 000 000 Ft
Tulajdonviszony:
Saját
Emelet:
2. emelet
Fűtés jellege:
Hőszivattyú
Kilátás:
utcai
Építési év:
1-5 éves
Erkély:
Van
Pince:
Nincs
Tároló:
Van
Lift:
Van
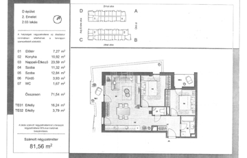
​Modern Elegancia és Parkra Néző Panoráma a XIX. kerületben! ​Eladó a XIX. kerület kedvelt, csendes részén, az Zrínyi utcában egy 2023-as építésű, netto 72 m²-es, 3 szobás, prémium kategóriás tégla lakás. A lakáshoz 2 külön erkély tartozik. Az egyik erkély a nappali, és egy hálószobát körülölelve helyezkedik el, a másik egy különálló, a másik hálószobához tartozó. Ha nem akarsz felújítással bajlódni, és egy fenntartható, modern otthont keresel, megtaláltad! ​Miért ezt a lakást válaszd? ​Korszerű gépészet: A jövő technológiája! Mennyezeti hűtés-fűtés! Házközponti őszivattyús rendszer gondoskodik a kellemes hőmérsékletről télen-nyáron. Nincsenek zavaró fűtőtestek, csak tiszta terek és rendkívül alacsony rezsi. ​Óriási Erkély: A 20 m²-es terasz igazi kültéri nappaliként funkcionál, ahonnan közvetlen kilátás nyílik a parkra – tökéletes helyszín a reggeli kávéhoz vagy esti kikapcsolódáshoz. ​Elrendezés: Amerikai konyhás nappali + 2 külön nyíló hálószoba, külön fürdő és WC, ami ideális családoknak vagy Home Office-hoz is. ​Felszereltség: Teljesen gépesített, beépített minőségi konyhabútor és modern műanyag nyílászárók. ​ ​Környék és Életérzés: ​A társasház tiszta, rendezett, a lakóközösség pedig kimondottan kulturált. Bár a környék csendes, a lokáció verhetetlen: ​1-2 perces séta: Buszmegállók, villamos, bankok, iskolák és bevásárlási lehetőségek. ​Zöld környezet, mégis minden karnyújtásnyira a várostól. ​A lakás tehermentes és azonnal költözhető! ​Irányár: [114.000.000] Ft Extrák: A lakáshoz saját MÉLYGARÁZS BEÁLLÓ (13 NM) és ABLAKOS TÁROLÓ (4,5 NM) is tartozik. Irányár: Tárolo:4.500.000 FT Garázs: 6.200.000 FT HÍVJON BIZALOMMAL, TEKINTSÜK MEG EGYÜTT!
https://ingatlanok.hu/elado/lakas/budapest-xix-ker/114-millio-ft;82-negyzetmeter;3-szoba;tegla-epitesu/11600342