Az értékesítő:
Lestyán László Józsefné Lakati Melinda
+36 70 455 0967

Eladó családi ház Balatonmáriafürdő, 95 000 000 Ft, 330 négyzetméter

95 000 000 Ft
családi ház, 330 négyzetméter
Építőanyag:
Tégla
Egész szobák:
3
Komfort fokozat:
Dupla komfort
Fűtés módja:
Gáz
Ingatlan állapota:
Felújítandó
Azonosító:
11600455
Értékesítés típusa:
eladó
Ingatlan típusa:
családi ház
Jelleg:
Családi ház
Település:
Balatonmáriafürdő
Alapterület:
330
Telekterület:
634
Ár:
95 000 000 Ft
Szintek száma:
1 szint
Fűtés jellege:
Cirkó
Kor:
21-50 éves
Telekterület típusa:
négyzetméter
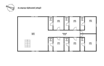
Balaton déli part, BALATONMÁRIAFÜRDŐ belterületén ELADÓ egy STRANDKÖZELI felújítandó ingatlan. Parkolás az ingatlan előtt és udvarában is lehetséges. Az ingatlan méreténél és kialakításánál fogva sok lehetőséget kínál. Földszintjén kiszolgáló és tároló helyiségek, egy kisebb lakás fürdővel, és 2 WC találhatók. Hozzáépítésre került még egy fedett terasz is. Tetőterében egy közös, tágas amerikaikonyhás nappaliból nyíló folyosó vezet a 6 különálló egységhez, amit hotelszobaként használtak: minden szobához tartozik egy zuhanyzó WC-vel. Tetőszerkezete ép: zsindellyel és a fedett terasz cseréppel fedett. A földszinti 2 db WC akadálymentesített. Kivett hétvégi ház és gazdasági épületként szerepel a tulajdoni lapon. Udvarán jelenleg egy kb.20 m3-es műanyag medence áll a hozzá tartozó szerkezetekkel együtt. Mellette fúrt kút, ami a medence töltésére és locsolásra is szolgálhat. Balatonmáriafürdőn iskola, óvoda, körzeti orvos, gyógyszertár, boltok, éttermek találhatók. A híres FLORIDA fagyizót sem hagyják ki az ide látogatók, kirándulók. A település egyre felkapottabb kiépített, gondozott központi és szabad strandjai okán. Forgalmas mólóján kirándulókkal és horgászokkal találkozhatunk. Horgászati lehetőség még a Nyugati Övcsatorna, ami keresztülszeli a falut. Kikötőjéből sétahajó indul hajózási szezonban a Balaton északi partjára: Badacsonyba, Keszthelyre...stb. További információkért és a megtekintésért hívjon telefonon a hét bármelyik napján! Referencia szám: M322620
https://ingatlanok.hu/elado/haz/balatonmariafurdo/95-millio-ft;330-negyzetmeter;7-szoba;cirko-futes/11600455