Az értékesítő:
Ludas Judit
+36 30 960 7853

Eladó családi ház Veresegyház, 158 800 000 Ft, 145 négyzetméter

158 800 000 Ft
családi ház, 145 négyzetméter
Építőanyag:
Tégla
Egész szobák:
5
Komfort fokozat:
Dupla komfort
Fűtés módja:
Hőszivattyú
Ingatlan állapota:
Épülő
Azonosító:
11601361
Értékesítés típusa:
eladó
Ingatlan típusa:
családi ház
Jelleg:
Ikerház
Település:
Veresegyház
Alapterület:
145
Telekterület:
480
Ár:
158 800 000 Ft
Szintek száma:
1 szint
Fűtés jellege:
Geotermikus
Kor:
Új építésű
Terasz:
Van
Pince:
Nincs
Telekterület típusa:
négyzetméter
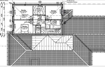
Eladásra kínáljuk egy új építésű projetben, 960 nm-es telken épülő ikerház mindkét felét Veresegyház kertvárosi részén, a Harmatok városrészben, gyönyörű természeti környezetben, aszfaltozott utcában. Jelen ikerház fél nettó 145 nm hasznos alapterületű két szintes épület + 20 nm-es fedett garázs, valamint 20 nm-es terasz és fedett belépő. Az ingatlan 5 szobával rendelkezik és majd' 500 nm-es telekrész tartozik hozzá. HELYISÉGEK: Földszint Nappali: 19,5 nm Étkező-konyha: 18,5 nm Szoba1: 10 nm Előtér: 8,6 nm Kamra : 2,2 nm Fürdő1: 3, 5 nm Lépcsőház: 2,4 nm +1,8 nm fedett belépő+19 nm terasz+20 nm garázs Emelet Szoba2: 12,4 nm Szoba3: 10,3 nm Szoba4: 12,8 nm Hátartási helyiség: 5 nm Fürdő2: 6,5 nm WC: 1,7 nm Közlekedő: 5,9 nm Lépcsőház: 4,7 nm Nappali+ 4 hálószoba, dupla komfort! MŰSZAKI TARTALOM: Az épület PTH 30-as falazóelemből, 12cm-es aljzatszigeteléssel, 10cm-es grafitos EPS homlokzati és 25cm-es födém hőszigeteléssel, beton födémmel, Bramac betoncserép fedéssel épül. Korszerű 5-légkamrás műanyag nyílászárók kerülnek beépítésre 3 rétegű üvegezéssel, elektromos redőny előkészítéssel. A fűtést, hűtést és meleg víz ellátást a legkorszerűbb hőszivattyús rendszer működteti beépített puffertartállyal kiegészítve, padlófűtéses hőleadással, H-tarifás villanyórával. Napelem és riasztó rendszer előkészítést valamint minden szobában klíma kiállást tartalmazza az ár. KÖRNYEZET: Veresegyház egyik legszebb városrészében, kertvárosi környezetben épül az ingatlan. Ajánlom mindenkinek, akik nyugodt, zöldövezeti környezetben szeretnének élni. Veresegyház rendekezik minden olyan infrastruktúrával, amely a mindennapi élethez elengedhetetlen: iskolák, óvodák, bevásárlási lehetőségek széles választéka, sportcentrumok, színház, egészségügyi központ. Helyi és kistérségi buszok könnyítik a közlekedést. Budapest mind tömegközlekedéssel, mind autóval 20-45 perc alatt elérhető. A beruházó több évtizedes tapasztalattal rendelkező, tőke erős cég, referenciáik a környéken igény esetén megtekinthetőek. Tervezett átadás. 2026.III. negyedévben. Ugyanitt az ikerház másik fele is eladó, amely 1 szintes, 4 szobás épület, hasonló műszaki tartalommal, amelynek az irányára: 145 800 000 Ft Az ingatlanok 10% -al leköthetők! TÁMOGATOTT ÉS PIACI HITELEKBEN KOLLÉGÁINK OTTHON VANNAK. EBBEN IS ÁLLUNK VEVŐINK RENDELKEZÉSÉRE. Várom megtisztelő hívását. ID:392756
https://ingatlanok.hu/elado/haz/veresegyhaz/159-millio-ft;145-negyzetmeter;5-szoba;geotermikus-futes/11601361