Az értékesítő:
Major Éva
+36 70 433 5341

Eladó lakás Kecskemét, 82 000 000 Ft, 65 négyzetméter

82 000 000 Ft
lakás, 65 négyzetméter
Építőanyag:
Tégla
Egész szobák:
3
Komfort fokozat:
Összkomfort
Ingatlan állapota:
Azonosító:
11601433
Értékesítés típusa:
eladó
Ingatlan típusa:
lakás
Település:
Kecskemét
Alapterület:
65
Ár:
82 000 000 Ft
Emelet:
2. emelet
Fűtés jellege:
Cirkó
Építési év:
50 évesnél régebbi
Erkély:
Van
Lift:
Van
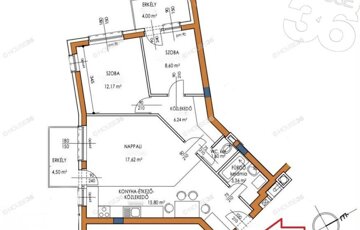
Kecskeméten, a Balaton utcában, 2015-ös építésű, szigetelt társasházban lévő, 65 m2-es, nappali +2 szobás, II. emeleti, 2 erkélyeslakás ELADÓ garázzsal, saját tárolóval!! Jellemzők: - 2015-ös építésű, kedvelt lakópark - homlokzat szigetelt - beépített konyhabútor gépekkel - előszoba szekrény - parkettás szobák +tágas nappali - nagyon kedvező rezsi költség - gáz-cirkó fűtés - 2 db erkély + 8 m2 - klíma - műanyag nyílászárók redőnnyel, szúnyoghálóval - földszintről induló lift - mélygarázs, további 6.000.000 Ft - saját tároló további 4.000.000Ft - alacsony rezsi A fenti adatok tájékoztató jellegűek, felelősséget érte nem vállalok. Referencia szám: 3621251
https://ingatlanok.hu/elado/lakas/kecskemet/82-millio-ft;65-negyzetmeter;3-szoba;tegla-epitesu/11601433