Az értékesítő:
Takács Dávid
+36 20 911 8014

Eladó családi ház Veszprém, 63 315 000 Ft, 90 négyzetméter

63 315 000 Ft
családi ház, 90 négyzetméter
Építőanyag:
Könnyűszerkezetes
Egész szobák:
1
Komfort fokozat:
Összkomfort
Ingatlan állapota:
Kitűnő
Azonosító:
11601639
Értékesítés típusa:
eladó
Ingatlan típusa:
családi ház
Jelleg:
Családi ház
Település:
Veszprém
Alapterület:
90
Ár:
63 315 000 Ft
Kor:
Új építésű
Erkély:
Nincs
Telekterület típusa:
négyzetméter
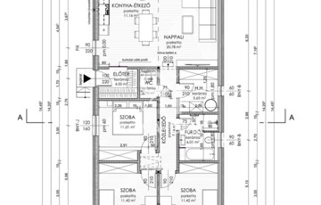
ÚJ ÉPÍTÉSŰ CSALÁDI HÁZ – TELJES KIVITELEZÉSSEL - TELEK NÉLKÜL! ELÉRHETŐ 90 m²-ES HASZNOS ALAPTERÜLETŰ, EGY SZINTES CSALÁDI HÁZ 1+3 FÉLSZOBÁS ELRENDEZÉSSEL! FIGYELEM! - A MEGHIRDETETT ÁR CSAK AZ INGATLANRA VONATKOZIK, A TELKET ÉS ANNAK ESETLEGES KÖZMŰVESÍTÉSÉT NEM TARTALMAZZA! - A hirdetésben szereplő ingatlan mintaterv, amely akár egyedi elképzelések alapján módosítható (terasz, helyiségek elhelyezkedése) - 4 féle műszaki készültséggel kérhető - A feltüntetett ár a mintatervre értendő kulcsrakész állapotban, 5% ÁFA számításával, alapáras műszaki tartalommal - Az esetleges elírások, információk és a változtatások jogát fenntartjuk A mintatervben található helyiségek: - Előtér: 4,00 m2 - Szoba: 11,42 m2 - Szoba: 11,42 m2 - Szoba: 11,25 m2 - Közlekedő: 7,16 m2 - Fürdő: 6,01 m2 - WC: 1,70 m2 - Nappali: 20,78 m2 - Konyha-étkező: 11,16 m2 - Háztartási helyiség: 5,65 m2 Főbb műszaki jellemzők: - Korszerű, BB energetikai szintet teljesítő kialakítás - Levegő–levegő hőszivattyús fűtés-hűtés rendszer - 100 literes hőszivattyús bojler - Hőszigetelt nyílászárók - Bramac tetőcserép - Beépített tartályos WC, alap szaniterek - Kulcsrakész kivitel esetén burkolatok meghatározott értékhatárig - A homlokzati színek, tetőszín, beltéri ajtók és több műszaki elem választható a standard kínálatból. Opcionálisan kérhető: - Padlófűtés - Levegő–víz hőszivattyú - Napelem - Redőny - Szellőztető rendszer - Klíma előkészítés és további kényelmi megoldások. Amennyiben megbízható, előre tervezhető rendszerben szeretné megvalósítani új otthonát, keressen bizalommal részletes műszaki tartalomért és személyes konzultációért. Amennyiben az ingatlan megvásárlásához el kell adnia jelenlegi otthonát, úgy annak és a teljes folyamatnak a lebonyolításában is állok rendelkezésre! TOVÁBBI SZOLGÁLTATÁSAINK: - Megbízható ügyvédi háttér - TELJESKÖRŰ INGTALAN FELÚJÍTÁS - INGYENES, FÜGGETLEN hitelügyintézés - INGYENES, FÜGGETLEN biztosítási tanácsadás - Energetikai tanúsítvány és ingatlan értékbecslés készítése - Klíma rendszerek kiépítése és beüzemelése - Riasztó- és kamera rendszerek kiépítése - Közművek és szolgáltatók átírása - Birtokbaadás lebonyolítása - Kert- és tereprendezés - Ingatlan takarítás - Költöztetés 10 ÉVES SZAKMAI TAPASZTALATTAL! #gonahome #tegyelprobara #keressbizalommal #mindenamiingatlan
https://ingatlanok.hu/elado/haz/veszprem/63-millio-ft;90-negyzetmeter;4-szoba;nincs-megadva-futes/11601639