Az értékesítő:
Takács Dávid
+36 20 911 8014

Eladó családi ház Veszprém, 37 274 000 Ft, 45 négyzetméter

37 274 000 Ft
családi ház, 45 négyzetméter
Építőanyag:
Könnyűszerkezetes
Egész szobák:
1
Komfort fokozat:
Összkomfort
Fűtés módja:
Villany
Ingatlan állapota:
Kitűnő
Azonosító:
11601811
Értékesítés típusa:
eladó
Ingatlan típusa:
családi ház
Jelleg:
Családi ház
Település:
Veszprém
Alapterület:
45
Ár:
37 274 000 Ft
Fűtés jellege:
Villany
Kor:
Új építésű
Telekterület típusa:
négyzetméter
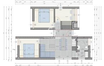
ELADÓ MODERN, 4 ÉVSZAKOS MODULHÁZAK TELJES KIVITELEZÉSSEL, EGYEDI IGÉNYEKRE SZABVA! FIGYELEM! - A kínált ingatlanok típustervek alapján, üzemi körülmények között, csarnokban készülnek, majd a helyszínen kerülnek telepítésre. A gyártás minden esetben egyedi megállapodás alapján történik. - Egy modul szállítási mérete 13x4 méter, az épület több modulból is összeállítható. - A modulok széleskörű felhasználásra is, akár irodának, lakóépületnek vagy üzlethelyiségnek is alkalmas. - A feltüntetett ár a mintatervre értendő kulcsrakész állapotban, 5% ÁFA számításával, emelt szintű műszaki tartalommal. - Az esetleges elírások, információk és a változtatások jogát fenntartjuk. ALAPADATOK: - A hirdetett modulház nettó alapterülete: 45 m2 - Fűtés: elektromos konvektor - Klíma a nappaliban - Padlófűtés a fürdőszobában - Melegvízről egy 80 literes villanybojler gondoskodik - Minőségi hőszigetelt nyílászárók Az ár tartalmazza: - Komplett belső burkolatrendszert - Szanitereket - Gépészeti rendszert (víz, villany, világítás, fűtés) Helyiségek méretei: - Közlekedő: 1,42 m2 - Szoba: 7,79 m2 - Szoba: 7,79 m2 - Dolgozószoba: 6,14 m2 - Amerikai konyhás nappali: 19,16 m2 - Fürdőszoba: 2,75 m2 ELŐNYÖK: - Környezetbarát technológia - Minőségi előregyártás - Utólagos bővíthetőség HASZNOS INFORMÁCIÓK: - ÉMI/NMÉ engedély alapján készülnek - 4 évszakos lakóépületként használhatók - Lakóházként engedélyeztethetőek - Fa vázas könnyűszerkezetes rendszer - Gyors, ellenőrzött gyártási folyamat Amennyiben megbízható, előre tervezhető rendszerben szeretné megvalósítani új otthonát, keressen bizalommal részletes műszaki tartalomért és személyes konzultációért. Amennyiben az ingatlan megvásárlásához el kell adnia jelenlegi otthonát, úgy annak és a teljes folyamatnak a lebonyolításában is állok rendelkezésre! TOVÁBBI SZOLGÁLTATÁSAINK: - Megbízható ügyvédi háttér - TELJESKÖRŰ INGTALAN FELÚJÍTÁS - INGYENES, FÜGGETLEN hitelügyintézés - INGYENES, FÜGGETLEN biztosítási tanácsadás - Energetikai tanúsítvány és ingatlan értékbecslés készítése - Klíma rendszerek kiépítése és beüzemelése - Riasztó- és kamera rendszerek kiépítése - Közművek és szolgáltatók átírása - Birtokbaadás lebonyolítása - Kert- és tereprendezés - Ingatlan takarítás - Költöztetés 10 ÉVES SZAKMAI TAPASZTALATTAL! #gonahome #tegyelprobara #keressbizalommal #mindenamiingatlan
https://ingatlanok.hu/elado/haz/veszprem/37-millio-ft;45-negyzetmeter;4-szoba;villany-futes/11601811