Az értékesítő:
Casa Futura Kft.
+36 70 399 0399

Eladó lakás Dunakeszi, 69 000 000 Ft, 71 négyzetméter

69 000 000 Ft
lakás, 71 négyzetméter
Egész szobák:
2
Ingatlan állapota:
Átlagos
Azonosító:
11601912
Értékesítés típusa:
eladó
Ingatlan típusa:
lakás
Település:
Dunakeszi
Alapterület:
71
Ár:
69 000 000 Ft
Emelet:
2. emelet
Fűtés jellege:
Távfűtés
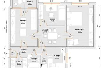
Dunakeszin kínálunk eladásra egy 71 m²-es, erkélyes, 2+1 félszobás, világos és jó elosztású lakást. Az ingatlan normál állapotú, beköltözhető, de ugyanakkor igény szerint esztétikai, illetve kisebb korszerűsítési munkálatokkal tovább növelhető értéke és komfortja. A külön nyíló szobák laminált padlóval burkoltak, redőnnyel felszereltek, illetve a lakásban az erkély ajtót leszámítva teljeskörű nyílászáró csere történt. A nappaliból egy 4 m²-es erkélyre léphetünk ki, ahonnan parkos, zöld környezetre nyílik kilátás, ami kellemes, nyugodt hangulatot biztosít. A fűtést a dunakeszi hőközpont biztosítja, melynek köszönhetően, kellemes komfortérzetet nyújt a lakás, alacsony fenntartási költségek mellett. Elhelyezkedése kiemelkedően jó: központi, mégis csendes, zöldövezeti környezetben található. A lokációnak köszönhetően minden fontos intézmény, bevásárlási lehetőség, iskola, óvoda, tömegközlekedés néhány percen belül elérhető, a Duna-parti sétány pedig rövid sétával megközelíthető. Amennyiben a vásárláshoz meglévő ingatlana eladása vagy hitelügyintézés szükséges, irodánk teljes körű segítséget nyújt a gördülékeny és biztonságos ügyintézés érdekében. A hitel közvetítése díjmentes. Amennyiben elnyerte tetszését, vagy bármilyen kérdése lenne, illetve megtekintési szándéka, keresse bizalommal irodánkat.
https://ingatlanok.hu/elado/lakas/dunakeszi/69-millio-ft;71-negyzetmeter;3-szoba;nincs-megadva-epitesu/11601912