Az értékesítő:
Horváth Zoltán
+36 70 550 6680

Eladó családi ház Monor, 89 800 000 Ft, 96 négyzetméter

89 800 000 Ft
családi ház, 96 négyzetméter
Építőanyag:
Tégla
Egész szobák:
5
Komfort fokozat:
Összkomfort
Ingatlan állapota:
Felújított
Azonosító:
11601915
Értékesítés típusa:
eladó
Ingatlan típusa:
családi ház
Jelleg:
Ikerház
Település:
Monor
Alapterület:
96
Telekterület:
100
Ár:
89 800 000 Ft
Telekterület típusa:
négyzetméter
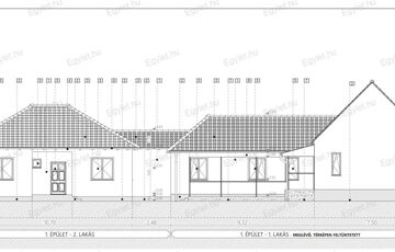
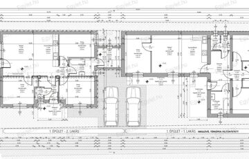
Megvételre kínálunk Monoron egy FELÚJÍTOTT, HÓSZIVATTYÚS, KLÍMÁS, teraszos, 96 nm-es, 5 szobás ikerházat. Minőségi alapanyagokból, igényes kivitelezés jellemzi a projektet, ahol a biztonság és a kényelem mellett az energiatakarékosság volt a fő szempont. Az ingatlan fűtéséről, valamint a használati melegvíz ellátásáról egy modern, energia takarékos, innovatív levegő-víz hőszivattyú gondoskodik H tarifás üzemeltetéssel. Ennek köszönhetően a rezsi költségek minimalizálódnak. Az ingatlan hűtéséről egy klíma berendezés fog gondoskodni. Ennél a beruházásnál most lehetősége van kompromisszumok nélkül egy olyan lakásba költözni, ahol Ön kiválaszthatja a hideg és meleg burkolatokat, szanitereket, valamint az egyéb kiegészítőket a családja legnagyobb megelégedésére, ez által személyre szabva álmai otthonát. A kulcsra kész ár tartalmazza az rlrktromos redőnyöket, három rétegű nyílászárókat, riasztó előkészítést, kaputelefon és motoros kapu kiépítést. A gépjárművekkel az ingatlanhoz tartozó térkövezett beállón lehet biztonságosan parkolni. Az ingatlanhoz 100 nm-es telek tartozik Az ingatlan árát a kulcsrakész állapotra adtuk meg. Helyiség lista: - Előszoba - WC - Négy hálószoba - Fürdőszoba - Amerikai konyha, - Étkező - Nappali - Gépészeti helyiség - Előterasz Az ingatlan biztonságos, nyugodt, csendes, kertes házas övezetében, Monor egyik legszebb részén található. A környék fejlett infrastruktúrájának köszönhetően bővelkedik a szociális intézményekben, bölcsőde, óvoda, általános iskola, orvosi intézmények, bevásárlási lehetőségek, találhatóak a közelben. Közlekedése kiváló, busszal a centrum vagy vonattal a Nyugati pu. rövid idő alatt megközelíthető. Az M4-es autópálya öt perc alatt elérhető. Hitel, CSOK igénylésben díjmentes ügyintézéssel állunk rendelkezésére! Nálunk kiválaszthatja az Ön számára legkedvezőbb ajánlatot. Várom megtisztelő érdeklődésüket.    
https://ingatlanok.hu/elado/haz/monor/90-millio-ft;96-negyzetmeter;5-szoba;nincs-megadva-futes/11601915