Az értékesítő:
Tóth Péter
+36 30 237 4705

Eladó családi ház Üllő, 109 000 000 Ft, 91 négyzetméter

109 000 000 Ft
családi ház, 91 négyzetméter
Építőanyag:
Tégla
Egész szobák:
4
Komfort fokozat:
Dupla komfort
Ingatlan állapota:
Azonosító:
11602107
Értékesítés típusa:
eladó
Ingatlan típusa:
családi ház
Jelleg:
Ikerház
Település:
Üllő
Alapterület:
91
Telekterület:
250
Ár:
109 000 000 Ft
Szintek száma:
1 szint
Fűtés jellege:
Egyedi
Kor:
6-10 éves
Terasz:
Van
Pince:
Nincs
Telekterület típusa:
négyzetméter
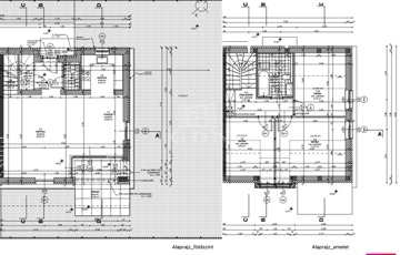
NAGYCSALÁDOSOK FIGYELEM! Üllőn a Sportliget lakóparkban, megvételre kínálok egy 2018-ba épült ikerház felet. Az ingatlan Leiertherm 30N+F kerámia téglából, 10 cm-es homlokzati szigetelőrendszerrel, 10 cm-es YTONG válaszfalakkal, 15 cm-es mennyezeti paplan szigeteléssel épült, 2 rétegű műanyag nyílászáróval szerelt, 3 külön nyíló szobával, dupla komforttal nagy amerikai konyhás nappalival rendelkezik. Fűtését, egy CALEO elektromos rendszer adja. 2019-ben SolarEdge 5,4 kWp napelem rendszer lett telepítve, mely az ingatlan teljes elektromos rendszerét táplálja. Átlagos éves termelés stabilan 4 - 5,2 MWh. A földszinten található egy gépészeti helyiség, wc kézmosóval, kényelmes nagy nappali konyhával, közvetlen kertkapcsolattal. Az emeleten három teljes értékű külön nyíló szoba és egy kádas fürdőszoba lett kialakítva. A kizárólagos használatú 250 nm-es kert, kényelmes kikapcsolódást nyújt és gyorsan karbantartható. 1 személyautó parkolására van lehetőség. Közlekedés. Budapest belvárosa 35 - 60 perc autóval, Üllő vasútállomás, 17 perc gyalogosan, 4 perc autóval. Amennyiben hirdetésem felkeltette érdeklődését, várom hívását a hét bármely napján. tp
https://ingatlanok.hu/elado/haz/ullo/109-millio-ft;91-negyzetmeter;4-szoba;egyedi-futes/11602107