Az értékesítő:
Lestyán László Józsefné Lakati Melinda
+36 70 455 0967

Eladó lakás Tab, 39 900 000 Ft, 68 négyzetméter

39 900 000 Ft
lakás, 68 négyzetméter
Építőanyag:
Tégla
Egész szobák:
3
Komfort fokozat:
Komfort
Ingatlan állapota:
Azonosító:
11602622
Értékesítés típusa:
eladó
Ingatlan típusa:
lakás
Település:
Tab
Alapterület:
68
Ár:
39 900 000 Ft
Emelet:
2. emelet
Fűtés jellege:
Villany
Kilátás:
utcai
Építési év:
21-50 éves
Erkély:
Van
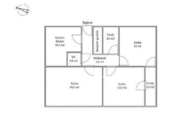
Egy kihagyhatatlan lehetőség Tabon annak, aki csak költözni szeretne! Eladásra kínálunk Tab legfrekventáltabb helyén egy gyönyörű 3 szobás, napfénnyel teli 2. emeleti lakást. Az ingatlan 68 m2-en terül el, melyben helyet kapott egy szép nagy konyha étkezővel, egy kádas fürdőszoba, wc, egy közlekedő beépített gardróbbal és 3 nagy szoba. A teljes villany hálózat újra lett vezetékelve, megteremtve ezzel az elektromos fűtés műszaki feltételeit. A szobák szalagparkettával vannak lerakva, a lakás többi része pedig járólappal burkolt. Műanyag nyílászárói redőnyökkel felszereltek. Az ingatlan kényelmét szolgálja még egy hűtő-fűtő klíma. Külön pozitív, hogy az épületben elhelyezkedő lakások csak és kizárólag a konyha falaival érnek össze egymással, így csendet és nyugalmat hagyva az itt élőknek. A lakás gondosan karbantartott. A lakástól öt perc sétával elérhető posta, általános iskola, középiskola, óvoda, bölcsőde, élelmiszerboltok, húsbolt, dohánybolt, könyvtár, egészségház, polgármesteri hivatal és ennek a felsorolásnak még nagyon hosszú a vége. Ajánljuk mindazoknak, akik egy igényes felújított lakást keresnek, ahova szinte tényleg csak költözni kell. Akár több gyermekes családoknak is kényelmes otthon lehet. Amennyiben felkeltette érdeklődését, kérem hívjon bizalommal, hogy megmutathassuk személyesen is! M322223 Kuti Dávid Referencia szám: M322223
https://ingatlanok.hu/elado/lakas/tab/40-millio-ft;68-negyzetmeter;3-szoba;tegla-epitesu/11602622