Az értékesítő:
Borosné Hajnalka
+36 70 649 7985

Eladó telek/földterület Harta, 120 000 000 Ft, 4 387 Négyzetméter

120 000 000 Ft
telek/földterület, 4 387 Négyzetméter
Azonosító:
11602804
Értékesítés típusa:
eladó
Ingatlan típusa:
telek/földterület
Jelleg:
Belterület
Település:
Harta
Telekterület:
4387
Ár:
120 000 000 Ft
Telekterület típusa:
Négyzetméter
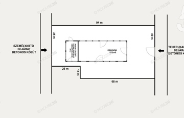
Eladó ipari csarnok a Duna kanyarulatában kiváló adottságokkal. Megvételre kínálunk egy 1000 m2 -es ipari csarnokot amely 4388 m2 -es telken helyezkedik el. Az ingatlan kiváló lehetőségeket biztosít ipari, gyártó, és logisztikai tevékenységekre, hiszen utánfutók, hajóalkatrészek gyártására használták. Ez az ingatlan tökéletes választás vállalkozások számára ,akik egy jól megközelíthető, nagy területtel rendelkező, azonnal használható ipari csarnokot keresnek. A csarnok főbb jellemzői: - három ipari kapu a könnyű be és kirakodásért - iroda, öltöző, tusoló és étkező tér a dolgozók kényelméért - tetőtéri rész ( 76 m2) amely lakás vagy további iroda kialakítására alkalmas, dunaparti panorámával - erős ipari infrastruktúra : 3 x 100 Amper áram, saját trafó - masszív szerkezet, zsalukő betonnal kiöntve,5 cm szigetelés - trapézlemez tető - ventillátoros légbefúvós kályha Ne hagyja ki ezt a remek lehetőséget! Hívjon most, és tekintse meg személyesen! Az iroda legfrissebb, aktuális kínálatát a HOUSE36 saját weboldalán találja!
https://ingatlanok.hu/elado/telek_foldterulet/harta/120-millio-ft;4387-negyzetmeter;ipari-telek-besorolas;nincs-kozmu/11602804