Az értékesítő:
Puskás Attila
+36 70 394 1132

Eladó családi ház Hévíz, 299 000 000 Ft, 280 négyzetméter

299 000 000 Ft
családi ház, 280 négyzetméter
Építőanyag:
Tégla
Egész szobák:
5
Komfort fokozat:
Dupla komfort
Fűtés módja:
Gáz
Ingatlan állapota:
Újszerű
Azonosító:
11603379
Értékesítés típusa:
eladó
Ingatlan típusa:
családi ház
Jelleg:
Családi ház
Település:
Hévíz
Alapterület:
280
Telekterület:
984
Ár:
299 000 000 Ft
Fűtés jellege:
Cirkó
Kor:
6-10 éves
Erkély:
Van
Klíma:
Van
Telekterület típusa:
négyzetméter
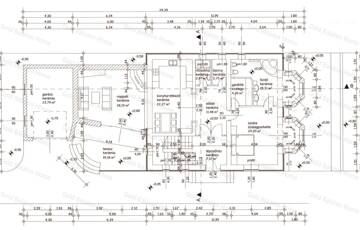
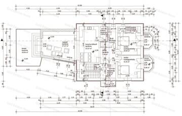
<p><strong>A Gold Balaton Home Ingatlaniroda</strong> megvételre kínálja a 100 307-es sorszámú HÉVÍZI CSALÁDI HÁZAT</p><p><br></p><p>Panorámás kilátás, igényes megjelenésű villa!</p><p>2020-ban fejezték be a családi ház építését, ami 984 m2-es területen helyezkedik el Hévíz közkedvelt utcájában.</p><p>40 m2-es medence napozó terasszal a rendezett udvar ékköve. Fűthető, ellenáramoltatóval, víz forgatóval rendelkezik a gépészet.</p><p>A családi ház kettő nagy amerikai konyhás nappalival, három hálószobával, három fürdőszobával, teraszokkal kényelmes életteret biztosít Ön és családja számára. Szintenként külön is lezárható, használható.</p><p><br></p><p>- Földszinti helyiségek: amerikai konyhás nappali 50,46 m2, szoba 24,2 m2, fürdőszoba 15,31 m2, gardrób 4,3 m2, mosókonyha 2,97 m2, külön WC 2,75 m2, kamra 1,9 m2, előtér 11,48 m2, lépcsőház 7,17 m2, terasz 19,18 m2, garázs 23,79 m2.</p><p>- Emeleti helyiségek: amerikai konyhás nappali 49,94 m2, szoba 16,16 m2, terasz 5,08 m2, szoba 15,54 m2, terasz 5,08 m2, fürdőszoba 6,28 m2, gardrób 1,8 m2, fürdőszoba 2,49 m2, kamra 3,18 m2, előtér 7,56 m2, lépcsőház 6,28 m2, kazánház 1,48 m2, erkély 2,7 m2, terasz 28,56 m2.</p><p><br></p><p><strong>Műszaki paraméterek:</strong></p><p>Főfalakig visszabontották a meglévő épületet, és teljesen újjá építették a házat a mostani műszaki követelmények szerint.</p><p>- 2020-ban került átadásra a 15 cm-es külső hőszigeteléssel ellátott családi ház</p><p>- héjazata cserép, födém szigetelés 30 cm</p><p>- műanyag nyílászárók három rétegű üvegezéssel, szúnyoghálóval</p><p>- fűtés kondenzációs gázkazánnal, hőleadás padlófűtéssel</p><p>- nappaliban fatüzeléses kandalló</p><p>- elektromos hálózat 380 Volt</p><p>- hűtő-fűtő klíma minden szobában és a nappalikban</p><p>- konyhabútorok gépekkel felszerelve</p><p>- elektromos kapu és garázsajtó</p><p><br></p><p><strong>Az ingatlan egyéb jellemzői:</strong></p><p>- rendezett, körbekerített udvar</p><p>- térkővel lerakott udvarrész</p><p><strong>Hévízi tó 800 m-re található.</strong></p><p>Amennyiben hirdetésem felkeltette érdeklődését, kérem, keressen bizalommal!</p><p><br></p><p><strong>Irodánk szolgáltatásai igény esetén:</strong> ügyvéd, energetikai tanúsítvány, hitelügyintézés, értékbecslés, statikus, földmérő, belsőépítész. Biztonság, szakértelem - GOLD BALATON HOME - <strong>„Élj ott, ahol mások nyaralnak” </strong></p>
https://ingatlanok.hu/elado/haz/heviz/299-millio-ft;280-negyzetmeter;5-szoba;cirko-futes/11603379