Az értékesítő:
Sárainé Kovács Ágnes
+36 30 742 5020

Eladó ipari ingatlan Hódmezővásárhely, 59 900 000 Ft, 170 négyzetméter

59 900 000 Ft
ipari ingatlan, 170 négyzetméter
Ingatlan állapota:
Átlagos
Azonosító:
11603394
Értékesítés típusa:
eladó
Ingatlan típusa:
ipari ingatlan
Jelleg:
Műhely
Település:
Hódmezővásárhely
Alapterület:
170
Ár:
59 900 000 Ft
Telekterület típusa:
Négyzetméter
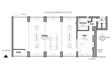
Eladó ~170,00 m2 alapterületű, autószerelő műhely és iroda helyiség szociális blokkal. A műhelyben 2 szerelőakna és a pilléreket összekötő rácsos tartó szerkezet található. 3 méternél szélesebb, nyitható ajtók kerültek beépítésre az utcafronton és az udvar felőli homlokzaton is. Az épület előtti parkolóhelyek a főútról könnyen megközelíthetőek. Az ingatlan tehermentes, azonnal birtokba vehető! Néhány információ még az ingatlanról: - Alapterület: ~170,00 m2 - Autószerelő műhely: ~130,00 m2 - Iroda, konyha mosdó: ~40,00 m2 - Áramellátás: Ipari áram - Fűtés: gázkazán, klíma Az ingatlannal kapcsolatos kérdéseivel várom hívását, a hét bármely napján. Ügyfeleink számára irodánk teljes jogi hátteret, adás-vétellel kapcsolatos térítésmentes jogi tanácsadást biztosít. Bank semleges hitelügyintézéssel, díjmentes hitelszűréssel és tanácsadással is hozzájárulunk, hogy megtalálja az ön számára legkedvezőbb megoldást. (További képekért és információkért kérem hívjon!)
https://ingatlanok.hu/elado/ipari_ingatlan/hodmezovasarhely/60-millio-ft;170-negyzetmeter;muhely-jellegu;nincs-megadva-tulajdonviszony/11603394