Az értékesítő:
Némethné Zsuzsa
+36 70 412 3861

Eladó iroda/üzlethelyiség Debrecen, Belváros, 395 000 000 Ft, 251 négyzetméter

395 000 000 Ft
iroda/üzlethelyiség, 251 négyzetméter
Azonosító:
11603785
Értékesítés típusa:
eladó
Ingatlan típusa:
iroda/üzlethelyiség
Jelleg:
Iroda
Település:
Debrecen
Alapterület:
251
Ár:
395 000 000 Ft
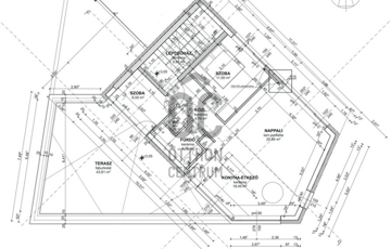
Debrecen egyik legforgalmasabb csomópontjához közel, mégis egy csendes, ősfás utcában kínálok megvételre egy különleges új építésű ingatlant. Egyben eladó, amely társasházként (2 lakás, 1 iroda, 3 garázs) készül, de kialakítása miatt számos üzleti és befektetési koncepcióra továbbgondolható. Az épület 95%-os készültségi állapotban van, a belső burkolatok és ajtók az új tulajdonos igényei szerint fejezhető be – ez óriási előnyt jelent mind funkcióban, mind arculatban. A projekt lényege és ereje: - 3 szint, mindegyik önálló funkcióval - modern, minimál stílus, kiemelkedő energetikai megoldások - külön albetétek (1 iroda, 2 lakás, 3 garázs) - nagy üvegfelületek, prémium nyílászárók - tágas teraszok, kivételes fényviszonyok - hőszivattyús fűtés-hűtés, padló- és mennyezet temperálás Miért különleges? Mert ritka Debrecenben olyan új építésű ingatlan, amely: - vállalkozásra, szolgáltatásra és lakhatásra egyszerre alkalmas, - belváros-közeli, mégis nyugodt utcában található, - társasházként is megtartható, de - komplex projektté, saját üzleti központtá, magánklinikává vagy szálláshellyé is átalakítható. Lehetséges hasznosítások (nem teljes lista): * magánklinika / egészségügyi központ * prémium irodaház, 20–25 munkaállomással * cégközpont / székhely * rövid- vagy hosszútávú szálláshely (akár 20 főig) * szépségipari szolgáltató központ * többgenerációs családi ház * vagy a társasházi struktúra megtartásával: továbbértékesítés, bérbeadás. Lokáció – a projekt egyik legnagyobb értéke Az ingatlan 10 perc sétára van a belvárostól, kórház, bevásárlóközpont, éttermek, benzinkút, buszmegálló és egy rendezett angolkert közvetlen közelében. Ez a pozíció Debrecenben meghatározó előnyt jelent mind befektetési értékben, mind kihasználhatóságban. Főbb műszaki paraméterek (röviden): - bruttó ~320 m² összterület - több mint 40 m²-es prémium terasz - 3 állásos teremgarázs - porotherm falazat, 15 cm szigeteléssel - prémium alumínium nyílászárók, 3 rétegű üvegezéssel - energiahatékony hőszivattyús rendszer - tetőtérben extra PIR + fújt purhab szigetelés. „Ez az ingatlan nem csupán egy projekt – hanem egy stratégiai előny, amit most lehet megszerezni.”
https://ingatlanok.hu/elado/iroda/debrecen/395-millio-ft;251-negyzetmeter;iroda-jellegu;nincs-megadva-berendezett/11603785