Az értékesítő:
Huszár Éva
+36 30 293 6514

Kiadó iroda/üzlethelyiség Győr, 70 000 Ft/hónap, 22 négyzetméter

70 000 Ft/hónap
iroda/üzlethelyiség, 22 négyzetméter
Azonosító:
11603917
Értékesítés típusa:
kiadó
Ingatlan típusa:
iroda/üzlethelyiség
Jelleg:
Iroda
Település:
Győr
Alapterület:
22
Ár:
70 000 Ft/hónap
Lift:
Van
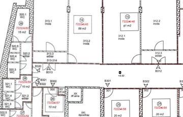
Győr belvárosában kiadó iroda helyiség! Egyedi épületben különféle hasznosítási lehetőséggel kiadó irodát kínálok. Az ingatlan Győr-Belvárosában található. Környezetében a legforgalmasabb csomópont helyezkedik el. Pár lépés távolságra a Baross úttól. Számtalan kereskedelmi-szolgáltató ingatlanok valamint lakások veszik körbe az épületet. Barokk stílusban épült 1970-ben téglából. Az épület nem áll műemlékvédelem alatt. A földszinten raktár és iroda helyiségek, valamint vizesblokkok, az emeleten középfolyosós elrendezésű irodablokkok kerültek kialakításra vizesblokkokkal. A szintek közötti mozgást egy lépcsőház biztosítja. Lépcsőházban lift található. Az iroda a 3. emeleten található,teljes mérete 58 m2. Az emeleten 17 irodahelyiség kapott helyet. Ez az iroda a folyósó közepén található. Közös használatú mellékhelyiség működik az emeleten vendégeknek és privát használatra. Nyílászárók fa. Fűtése távhő, radiátoros hőleadón keresztül. 2019-ben esztétikai és részleges műszaki felújíítás történt. Az épület risztóval felszerelt. Parkolás közterületen megoldott, lehetőség parkolókártya váltása. Rezsi elszámolása közös mérőn keresztül történik. Az ingatlan rezsi költsége havi elszámolás alapján benne van az árban (víz, villany, fűtés. közös költség) Minimum 1 év bérleti szerződés szükséges. Kaució: 2 Havi+ aktuális hónap megfizetése szükséges. Az iroda helyiég teljes mérete 58 m2 amely jelenleg megosztott, ebből 5m2 közös előtér amely alkalmas az ügyfelek fogadására 28,5 m2 az egyik iroda és 22 m2 a másik. A 28,5 m2 esetében a bérleti díj 90.000 Ft/hó rezsivel együtt. 22 m2 esetében 70.000 Ft/hó rezsivel együtt. Teljes bérlés esetén 160.000 Ft a bérleti díj rezsi költséggel eggyütt. Irodaházként működő építményben szolgáltató egységek működnek. Ügyvéd, tervező iroda, könyvelő. Az ingatlan kiválóan alkalmas kisvállalkozók számára, csendes tevékenység végzésére. (szépségiparban dolgozóknak, oktatási célra, szolgáltató egységnek) Előnyök: Kiváló parkolási lehetőségek: Könnyen elérhető ügyfelek és dolgozók számára. Jól reklámozható: Stratégiai elhelyezkedésének köszönhetően magas láthatóság, kiváló reklám lehetőségek. Jól alakítható: Az épület belső terei rugalmasan átalakíthatók, így minden cég saját igényeire szabhatja. Kiemelkedő befektetési lehetőség: Az ingatlan közelsége a nyüzsgő belvárosi élet kedvelőinek rengeteg lehetőséget biztosít. Magas megtérülési potenciál. Ha szeretne a vállalkozásának egy kiemelkedő helyszínt választani, hívjon megtekintés miatt hétvégén is.
https://ingatlanok.hu/kiado/iroda/gyor/70-ezer-ft;22-negyzetmeter;iroda-jellegu;nincs-megadva-berendezett/11603917