Az értékesítő:
Koncz András
+36 20 933 3750

Albérlet, kiadó lakás Székesfehérvár, 250 000 Ft/hónap, 80 négyzetméter

250 000 Ft/hónap
lakás, 80 négyzetméter
Építőanyag:
Tégla
Egész szobák:
3
Komfort fokozat:
Összkomfort
Ingatlan állapota:
Felújított
Azonosító:
11604125
Értékesítés típusa:
kiadó
Ingatlan típusa:
lakás
Település:
Székesfehérvár
Alapterület:
80
Ár:
250 000 Ft/hónap
Tulajdonviszony:
Saját
Emelet:
1. emelet
Fűtés jellege:
Cirkó
Kilátás:
utcai
Építési év:
11-20 éves
Erkély:
Nincs
Kocsibeálló:
Van
Pince:
Nincs
Tároló:
Nincs
Lift:
Nincs
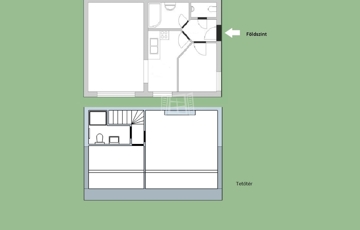
BL-004750. Öreghegy csendes utcájában, újszerű, 4 lakásos társasházban emeleti, két szintes, 80 nm-es, nappali + 2 fél szobás teljesen felújított és átépített, klimatizált lakás azonnali költözéssel kiadó. A lakás bútor nélküli, de a konyhabútor és elektromos tűzhely beépített. A szobák laminált padlósok, többi helyiség járólappal és oldalfali csempével burkolt. Gáz központi fűtéses (falfűtés), emeleten padló fűtés, a műanyag nyílászárókon szúnyogháló és redőny felszerelve. Zárt udvarban a parkolás 10.000 Ft/hó költségen igényelhető. Közös költség 15.000 Ft / hó. A lakásban az állattartás és a dohányzás nem megengedett. A lakás bérleti díja: 250.000 Ft / hó + rezsi. A beköltözéshez 2 havi kaució, első havi bérleti díj, közjegyzői nyilatkozat, valamint közvetítői díj megfizetése szükséges. Ha felkeltette érdeklődését, hívja irodánkat bizalommal, éljen ingyenes, személyre szabott hitelügyintézés szolgáltatásunkkal. Segítünk továbbá adásvételhez szükséges ügyvédi közreműködésben, energetikai tanúsítvány, valamint értékbecslés elkészítésében. For English details please send us a message or an e-mail, thank you
https://ingatlanok.hu/alberlet/kiado/lakas/szekesfehervar/250-ezer-ft;80-negyzetmeter;3-szoba;tegla-epitesu/11604125