Az értékesítő:
Posztlné Leiti Gabriella
+36 30 503 0000

Eladó családi ház Székesfehérvár, 175 000 000 Ft, 200 négyzetméter

175 000 000 Ft
családi ház, 200 négyzetméter
Építőanyag:
Tégla
Egész szobák:
5
Komfort fokozat:
Összkomfort
Fűtés módja:
Gáz
Ingatlan állapota:
Azonosító:
11604200
Értékesítés típusa:
eladó
Ingatlan típusa:
családi ház
Jelleg:
Családi ház
Település:
Székesfehérvár
Alapterület:
200
Telekterület:
1097
Ár:
175 000 000 Ft
Szintek száma:
Földszintes
Fűtés jellege:
Cirkó
Kor:
21-50 éves
Terasz:
Van
Pince:
Nincs
Telekterület típusa:
négyzetméter
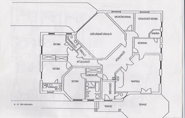
H-004202, Felsővárosban, a Belvároshoz közel, frekventált helyen összközműves építési telken eladó, egy 2000-ben épült egyszintes, 200m2 alapterületű, nappali + 4 teljes értékű szobával rendelkező önálló családi ház, dupla garázzsal. Az épület fűtéséről kondenzációs gázkazán gondoskodik, radiátoros hőleadással, a melegvizet napkollektor szolgáltatja. A nyílászárók korszerű műanyag redőnnyel ellátott. A burkolata magas minőségű járólap, illetve szőnyegpadló. Elosztását tekintve: - 200 m2 hasznos alapterület, folyosó, nappali-konyha-étkező, 4 tágas hálószoba gardróbbal, 3 ezek közül saját fürdőszobával, vendég WC, mosókonyha, gépészeti helység, 24 m2 fedett terasz, kétállásos garázs Fontosabb paraméterek: ● 2000-ben épült ● 1097m2 telekterület ● vastag tégla falazat (Porotherm 38 cm + 15 cm grafitos szigetelés), zsindely tetőfedés ● 25 cm vastag tégla teherhordó falazat, a szobák között 20 cm-es hangszigetelt tégla falazat ● nappali + 4 hálószoba + gardrób + mosókonyha + gépészeti helyiség ● 3 fürdőszoba melyből 2, a 2 szobához közvetlenül kapcsolódik ● 1 szintes, akadálymentesített bejutás ● gázkazán + radiátoros hőleadás ● klíma előkészítés ● 34 m2 terasz A ház extrái: ► napkollektor a tetőn ► hangulatos fatüzelésű kandalló ► vízlágyító rendszer ► öntöző rendszer ► dupla garázs 41 nm, térköves kocsibeálló, járda ► széles utcafront ► parkosított, örökzöldekkel telepített kert ► körbekerített telek, utcafronton kovácsoltvas elektromos kapu ► tetőtér igény szerint beépíthető Az utcai kapu elektromosan nyitható, az udvar térkövezett, parkosított. Itt található egy, egy fedett terasz illetve a kertben egy tároló. A kertben kerti kiülő, gyümölcsfa, örökzöld megtalálható. Tehermentes, azonnal költözhető. Eladási irányár: 175 M Ft A vásárláshoz, a jelenleg aktuális családok otthonteremtésére vonatkozó összes támogatás igénybe vehető (CSOK Plusz, Jelzáloghitel, Babaváró kölcsön, Piaci hitel, Felújítási támogatás…) Ha felkeltette érdeklődését, hívja irodánkat bizalommal, éljen ingyenes, személyre szabott hitelügyintézés szolgáltatásunkkal. Segítünk továbbá adásvételhez szükséges ügyvédi közreműködésben, energetikai tanúsítvány, valamint értékbecslés elkészítésében. For English information please send a message.
https://ingatlanok.hu/elado/haz/szekesfehervar/175-millio-ft;200-negyzetmeter;7-szoba;cirko-futes/11604200