Az értékesítő:
Nyegrutz Tamás
+36 30 560 5587

Eladó telek/földterület Gyál, 54 900 000 Ft, 1 019 Négyzetméter

54 900 000 Ft
telek/földterület, 1 019 Négyzetméter
Azonosító:
11604622
Értékesítés típusa:
eladó
Ingatlan típusa:
telek/földterület
Jelleg:
Belterület
Település:
Gyál
Telekterület:
1019
Ár:
54 900 000 Ft
Telekterület típusa:
Négyzetméter
Víz:
Telken belül
Gáz:
Utcában
Villany:
Telken belül
Csatorna:
Telken belül
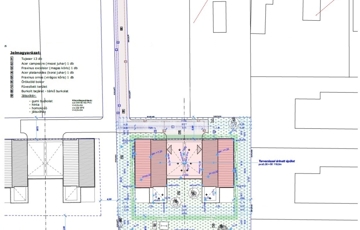
REMEK LEHETŐSÉG GYÁLON, CSAK NÁLUNK, ÜRES ÉPÍTÉSI TELKEK! Gyálon az Egressy Béni utca környezetében, eladásra kínálunk 2 db. egymás mellett lévő építési telket egyben, vagy külön-külön is. Igény szerint komplett engedélyeztetett tervekkel 2 db. ikerház megépítésére, összesen 4 db. lakásra! A víz csatorna bevezetés folyamatban és az elektromos órafogadó kiépítés szintén folyamatban + az EON hálózatfejlesztési hozzájárulás is benne van az árban! Az áramot elviekben 2027. májusában hozzák, erről írásos EON papírja is van a tulajdonosnak. A telkek megközelíthetősége egy saját-privát nyeles részen lehetséges, amely 6 méter széles. TELEKRE ÉS AZ ÉPÜLETRE VONATKOZÓ ADATOK: Építési övezet: Lke-1 TELEK TERÜLETE: 1019,00 m2 Beépíthető telek terület: 890,00 m2 Telek nyélterülete: 129,00 m2 Tervezett lakóépület beépített alapterülete: 264,67 m2 Beépítési százalék: 264,67/890,00=0,297382 - 29,74%< 30,00 % ÉPÍTMÉNYMAGASSÁG : Tervezett lakóépület építménymagassága: 4,58 m < 5,00 m SZINTERÜLETI MUTATÓ: Tervezett lakóépület szintterülete (264,67+159,52): 424,19 m2 Szinterületi mutató: 424,19 m2/1019,00m2= 0,4162 <0,8 ZÖLDTERÜLET SZÁMÍTÁS: Telek területe: 1019,00 m2 → 100,00 % Épületek területe: 264,67 m2 → 25,97% Belső utak, parkolók, teraszok területe: 219,33 m2 → 21,53% Zöldterület: 535,00 m2 → 52,50 % > 50% A telkek eladási ára darabonként: 54,9 MFt./db. Információk szerint, az Egressy út teljes felújítása-kiszélesítése-átépítése 2028-ban várható. Az ingatlan részletes ismertetése és bemutatása előre egyeztetett időpontban lehetséges, melyet nagyon rugalmasan kezelünk, akár HÉTVÉGÉN is. További kérdéseivel kapcsolatban várom a jelentkezését. Amennyiben Önnek a vásárláshoz szüksége lenne hitelre, babaváró kölcsönre, lakástakarékra, stb., kezdeményezheti a kapcsolatfelvételt bankfüggetlen hitelügyintézőinkkel, teljesen DÍJMENTESEN. Közel 25 év szakmai tapasztalattal rendelkezem, eladó vagy kiadó ingatlana értékesítése vagy bérbeadása esetén, készséggel állok az Ön rendelkezésére is, keressen bizalommal.
https://ingatlanok.hu/elado/telek_foldterulet/gyal/55-millio-ft;1019-negyzetmeter;epitesi-telek-besorolas;van-kozmu/11604622