Az értékesítő:
Pamuk Katalin
+36 30 992 5934

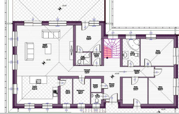
Eladó családi ház Érd, 198 000 000 Ft, 200 négyzetméter

198 000 000 Ft
családi ház, 200 négyzetméter
Egész szobák:
5
Ingatlan állapota:
Kitűnő
Azonosító:
11604953
Értékesítés típusa:
eladó
Ingatlan típusa:
családi ház
Jelleg:
Családi ház
Település:
Érd
Alapterület:
200
Telekterület:
1200
Ár:
198 000 000 Ft
Terasz:
Van
Erkély:
Nincs
Melléképület:
Nincs
Pince:
Nincs
Parketta:
Van
Kábel TV:
Nincs
Telekterület típusa:
négyzetméter
Kedves Ingatlankereső! Ha luxusra, természetközeli nyugalomra vágyik, ez a vadonatúj, prémium minőségű otthon tökéletes választás! Ez a ház nem csupán egy ingatlan – ez egy életforma. A prémium kivitelezés, a természet közelsége és a modern technológia találkozása. A fejlesztő kiemelten kezeli a projektet, a tőle megszokott magas minőségben épít, számos referenciával rendelkezik. A mai kor követelményeinek maximálisan eleget téve építik meg az ingatlanokat. TÖKÉLETES VÁLASZTÁS A NAGYVÁROSOK ZAJÁTÓL TÁVOLI, ENERGIAHATÉKONY ÁLOMOTTHONT KERESŐK SZÁMÁRA! Szeretné meglepni szeretteit vagy biztonságban tudni a pénzét? Akkor ha ön is így gondolja ajánlanám ezt az ingatlant!! JÖJJENEK, NÉZZENEK KÖRÜL, HOGYAN IS ALAKÍTANÁK KI AZ ÖNÖK IGÉNYEI SZERINT SZÉP OTTHONNÁ!! Kérem hívjon, találkozzunk a helyszínen, hogy körbesétálhassunk a nyugodt , szép környezetben megépülő ingatlant, alakítsuk ki együtt az Ön és kedves családja szép új otthonát :) Az energiahatékonyság jegyében HŐSZIVATTYÚ rendszert alkalmaztunk, mely nagyon ENERGIATAKARÉKOS FELHASZNÁLÁST tesz lehetővé. Rövid műszaki leírás: - Beton alap - 30-as tégla főfalak - 15cm grafitos-szigetelés - Tégla válaszfalak - A külső nyílászárók kívül szinezett műanyag szerkezetűek, elektromos alu redőnyökkel és szúnyoghálókkal felszerelve - A belső nyílászárók dekorfóliás ajtók - Cserép fedésű tető -Fűtés, hőszivattyús rendszerrel -2 db klíma -elektromos nagykapu -elektromos garázskapu Ez az ingatlanok részleteiben igen gazdag elgondolás szerint lesznek megépítve. Tapasztalt a kivitelező cég, így megannyi referencia munkával igazolható, hogy a megálmodástól a megvalósításhoz vezető út nem csak egy illúzió. Az építkezés során szigorúan csak a legmagasabb minőségű anyagokat fogja a kivitelező felhasználni, hogy igazán exkluzív otthont hozzon létre. Mindemellett számítunk az Ön igényeinek bevonásaira is, burkolatok és szaniterek és egyéb kiegészítők tekintetében. Aki a csendre, nyugalomra vágyik a zöldövezetben, luxus környezetben szeretne élni, de fontos neki, hogy elérhető távolságra legyen a város nyüzsgése is, annak kiváló választás ez a környék. HÍVJON FEL, KÉRJEN EGY IDŐPONTOT, JÖJJÖN, NÉZZE MEG! Nekem ebben az ingatlanban az elhelyezkedése mellett, a formálhatósága és a benne rejlő rengeteg lehetőség tetszik a legjobban. Ha Ön is így látja, hívjon, nézze meg, legyen az új tulajdonosa mielőbb! Nem fogja megbánni! Szép napot sikeres vásárlást kívánok! Köszönöm hogy időt szánt a hirdetésemre!
https://ingatlanok.hu/elado/haz/erd/198-millio-ft;200-negyzetmeter;5-szoba;nincs-megadva-futes/11604953