Az értékesítő:
Némethné Judit
+36 30 459 7168

Eladó családi ház Nyíregyháza, Borbánya, 87 900 000 Ft, 137 négyzetméter

87 900 000 Ft
családi ház, 137 négyzetméter
Építőanyag:
Tégla
Egész szobák:
3
Komfort fokozat:
Dupla komfort
Fűtés módja:
Gáz
Ingatlan állapota:
Azonosító:
11605821
Értékesítés típusa:
eladó
Ingatlan típusa:
családi ház
Jelleg:
Családi ház
Település:
Nyíregyháza
Alapterület:
137
Telekterület:
1050
Ár:
87 900 000 Ft
Szintek száma:
Földszint + tetőtér
Fűtés jellege:
Cirkó
Elhelyezkedés:
Udvari
Kor:
21-50 éves
Terasz:
Van
Erkély:
Nincs
Beépíthető tetőtér:
Nincs
Padlás:
Van
Melléképület:
Van
Pince:
Van
Klíma:
Nincs
Parketta:
Van
Bútorozott:
Nem bútorozott
Kábel TV:
Van
Telekterület típusa:
négyzetméter
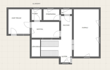
Nyíregyháza, Borbánya elején eladó 137 m2-s fűtött alapterületű három különnyíló szobás, nappalis, külön konyhás, fürdőszoba és wc külön, kamra, zuhany+wc, SOFA nyílászárós melyben az üveg 12 éve cserélve lett, egyedi gáz és vegyes fűtésű, HB 30-s téglából épült, külsőleg 5 cm-s szigeteléssel a tető BRAMAC cseréppel fedett jó állapotú szintes családi ház. Az ingatlan 1050 m2-s rendezett telken található tartozik hozzá udvarban nagy garázs, fedett gépkocsibeálló, filagória, boros pince, fúrt kút, ipari áram és nagy udvari tároló. A ház alatt teljes pince terül el benne utca felől kétállásos garázs, tároló, mosdó, műhely és kazánház. A tehermentes ingatlan aszfaltos út mellett helyezkedik el teljes közművel, birtokba vétel akár azonnal.
https://ingatlanok.hu/elado/haz/nyiregyhaza/88-millio-ft;137-negyzetmeter;3-szoba;cirko-futes/11605821