Az értékesítő:
Kiss Ildikó Mária
+36 30 950 8889

Eladó családi ház Budapest II. ker, 259 000 000 Ft, 135 négyzetméter

259 000 000 Ft
családi ház, 135 négyzetméter
Építőanyag:
Tégla
Egész szobák:
5
Komfort fokozat:
Összkomfort
Fűtés módja:
Gáz
Ingatlan állapota:
Azonosító:
11606055
Értékesítés típusa:
eladó
Ingatlan típusa:
családi ház
Jelleg:
Családi ház
Település:
Budapest II. ker
Alapterület:
135
Telekterület:
674
Ár:
259 000 000 Ft
Szintek száma:
Földszintes
Fűtés jellege:
Cirkó
Kor:
50 évesnél régebbi
Erkély:
Van
Pince:
Van
Klíma:
Van
Telekterület típusa:
négyzetméter
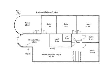
***SZÁZADFORDULÓS, FELÚJÍTOTT VILLA HIDEGKÚTON, ERDŐSZÉLÉN*** Eladásra kínálunk Budapest II/A. kerületének egyik LEGEXKLUZÍVABB, LEGZÖLDEBB részén, HÁRSAKALJÁN, egy igazi építészeti ékkövet! Ez a 135 nm-es, századfordulós stílusban épült, 2022-ben MODERNIZÁLT VILLA tökéletes harmóniát teremt a KLASSZIKUS elegancia és a mai kor kényelme között, amely egy 674 nm-es, PARKOSÍTOTT telken helyezkedik el, egy csendes, ERDŐSZÉLI zsákutcában. Az ingatlanban 4 TÁGAS szoba, valamint egy amerikai konyhás nappali található, ahol egy gyönyörű KANDALLÓ gondoskodik az otthonos, meghitt hangulatról. A ház fűtését korszerű kombi gázkazán biztosítja radiátoros hőleadással, a nyári komfortot pedig LÉGKONDICIONÁLÓ berendezések szolgálják. Az épületet utoljára 2022-ben korszerűsítették, ennek köszönhetően kívül-belül KIVÁLÓ állapotnak örvend, HŐSZIGETELT, ENERGIAHATÉKONY. A házhoz tartozik egy KÉTÁLLÁSOS GARÁZS, egy száraz PINCE, valamint egy beépített, gondozott MEDENCE is, amely a hatalmas TERASZ és a gyönyörű KERT mellett tökéletes lehetőséget kínál a pihenésre és kikapcsolódásra. Az ingatlan elhelyezkedése is elsőrangú, hiszen pár perc sétára található a legközelebbi buszmegálló, ahol éjszakai járat is közlekedik, a közelben pedig számos bevásárlási lehetőség, gyógyszertár, rendelő, iskola, óvoda és bölcsőde könnyíti meg a mindennapokat. A Hűvösvölgyi végállomás pedig 5 perc sétára található. Ez a villa nem csupán egy OTTHON, hanem egy ÉLETÉRZÉS, ahol a természet közelsége, a nyugalom és a kifinomult ELEGANCIA találkozik. VIGYÁZAT! Ha megtekinti élőben nem fog tudni ellenállni neki! Ha felkeltette érdeklődését az ingatlan, kérem, hívjon bizalommal akar hétvégén is!
https://ingatlanok.hu/elado/haz/budapest-ii-ker/259-millio-ft;135-negyzetmeter;5-szoba;cirko-futes/11606055