Az értékesítő:
Kránicz Éva
+36 70 377 4392

Eladó családi ház Pincehely, 39 500 000 Ft, 110 négyzetméter

39 500 000 Ft
családi ház, 110 négyzetméter
Építőanyag:
Tégla
Egész szobák:
2
Komfort fokozat:
Összkomfort
Fűtés módja:
Gáz
Ingatlan állapota:
Azonosító:
11606057
Értékesítés típusa:
eladó
Ingatlan típusa:
családi ház
Jelleg:
Családi ház
Település:
Pincehely
Alapterület:
110
Telekterület:
2985
Ár:
39 500 000 Ft
Szintek száma:
Földszintes
Fűtés jellege:
Egyedi
Kor:
50 évesnél régebbi
Klíma:
Van
Telekterület típusa:
négyzetméter
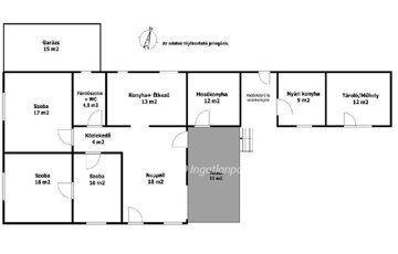
Pincehelyen eladó egy 110 m2-es, téglaépítésű, szépen felújított és kiváló állapotú családi ház, amely egy közel 3000 m2-es telken helyezkedik el. A klasszikus kádárkocka jellegű ingatlant praktikus elrendezésűvé tették: három szoba, nappali,konyha és mosókonyha került kialakításra benne. A ház igényes burkolatokat és festést kapott, a modern, jól felszerelt konyha pedig kényelmes és esztétikus teret biztosít a mindennapokhoz. Az ingatlan gondosan karbantartott, rendezett állapotú, így egy igazán otthonos, azonnal költözhető házról van szó. Az ingatlan műszaki felújításon is átesett, a villanyvezeték-hálózat teljesen ki lett cserélve, valamint a víz- és szennyvízvezetékek is megújultak. A nyílászárók korszerű műanyag kivitelűek, szúnyoghálóval és redőnnyel felszerelve. A komfortérzetről többféle fűtési lehetőség gondoskodik: gázfűtés, fa tüzelésű központi rendszer, valamint két darab hűtő-fűtő klíma áll rendelkezésre. A padlás szigetelést kapott. A tágas, 3000 m2-es telek kiváló lehetőséget nyújt kertészkedésre, gazdálkodásra. Az ingatlan állapota valóban kiemelkedően jó, a felújításnak köszönhetően az új tulajdonos számára egy kényelmes, azonnal birtokba vehető otthont kínál. Per- és tehermentes, megfelel az Otthon Start program feltételeinek. Az energetikai tanúsítvány készítése folyamatban van, amint rendelkezésre áll, úgy azzal a hirdetés frissítésre kerül. Referencia szám: M324842
https://ingatlanok.hu/elado/haz/pincehely/40-millio-ft;110-negyzetmeter;3-szoba;egyedi-futes/11606057