Az értékesítő:
Gergelyné Duhaj Erika
+36 30 486 3867

Eladó családi ház Kakucs, 96 900 000 Ft, 90 négyzetméter

96 900 000 Ft
családi ház, 90 négyzetméter
Építőanyag:
Tégla
Egész szobák:
4
Komfort fokozat:
Összkomfort
Fűtés módja:
Gáz
Ingatlan állapota:
Kitűnő
Azonosító:
11606561
Értékesítés típusa:
eladó
Ingatlan típusa:
családi ház
Jelleg:
Ikerház
Település:
Kakucs
Alapterület:
90
Telekterület:
450
Ár:
96 900 000 Ft
Szintek száma:
Földszintes
Fűtés jellege:
Cirkó
Kor:
1-5 éves
Erkély:
Van
Telekterület típusa:
négyzetméter
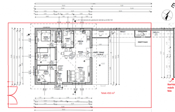
ELADÓ 3 ÉVES TÁROLÓKAPCSOLATOS IKERHÁZFÉL KAKUCSON, KÖZÖS FALAK NÉLKÜL! Eladásra kínálunk Kakucson egy 2023-ban elkészült 90 m2 hasznos alapterületű ikerházfelet 450 m2-es saját telekrésszel. Helyiségeket tekintve az ingatlan rendelkezik 3 külön nyíló hálószobával, egy amerikai-konyhás nappalival és étkezővel, fürdővel és külön WC-vel és egy előtérrel. A hasznos alapterületen kívül egy 24 m2-es fedett terasz, 6 m2-es kamra és egy 4,5 m2-es tároló is kialakításra került. ÉPÜLET:Az épület beton alapra téglából, fa födémmel és tetőszerkezettel, betoncserép fedéssel épült.10 cm homlokzati, 10 cm lépésálló lábazati- és 30 cm-es ásványgyapot födémszigeteléssel rendelkezik. Prémium nyílászárók: 3 rétegű üvegezéssel ellátott, 6 kamrás profilok a kiváló hang - és hővédelemért. Fűtését ARISTON kondenzációs kazán biztosítja padlófűtéses és radiátoros hőleadással. EXTRÁK:- WIFI-s hővisszanyerős szellőztető rendszer, hűtő-fűtő klíma és egy törölközőszárító- 3 fázisú elektromos kiállás napelemes rendszer inverterének fogadására- Ethernet- és koaxiális csatlakozás minden szobában- Kamerás kaputelefon és kamerarendszer- Elektromos kapu távnyitással és rádióvezérlésű autókapu. KERT:- 450 m2 alapterületű saját, körbekerített kertrész- 48 m²-es murvázott gépkocsibeálló több autó parkolására is- 2350 liter vízgyűjtő kapacitás (1000 literes tartály szivattyúval)- magaságyások, üvegház. Az ingatlan saját helyrajziszámmal rendelkezik, jogilag teljesen külön funkcionál a szomszédos ikerházféltől. ÖRÖMMEL ÁLLOK RENDELKEZÉSÉRE A DUNA HOUSE KÍNÁLATÁBAN MEGTALÁLHATÓ ÖSSZES INGATLANNAL KAPCSOLATBAN. HÉTVÉGÉN IS VÁROM MEGTISZTELŐ HÍVÁSÁT! Referencia szám: HZ089054
https://ingatlanok.hu/elado/haz/kakucs/97-millio-ft;90-negyzetmeter;4-szoba;cirko-futes/11606561