Az értékesítő:
Nagy Natália
+36 70 394 1131

Eladó családi ház Kehidakustány, 300 000 Euro, 170 négyzetméter

300 000 Euro
családi ház, 170 négyzetméter
Építőanyag:
Tégla
Egész szobák:
4
Komfort fokozat:
Összkomfort
Ingatlan állapota:
Kitűnő
Azonosító:
11607184
Értékesítés típusa:
eladó
Ingatlan típusa:
családi ház
Jelleg:
Családi ház
Település:
Kehidakustány
Alapterület:
170
Telekterület:
1200
Ár:
300 000 Euro
Fűtés jellege:
Központi
Kor:
Új építésű
Telekterület típusa:
négyzetméter
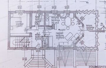
A Gold Balaton Home ingatlaniroda megvételre kínálja a 731200135-ös sorszámú KEHIDAKUSTÁNYI CSALÁDI HÁZAT. Háromszintes CSALÁDI HÁZ a Kehida Termál Gyógy- és Élményfürdőtől 1800 m-re, a Hévízi gyógyfürdőtől 11 km-re, a Balatontól 18 km-re eladó. A ház akár azonnal birtokbavehető. Figyelem most árcsökkenés: 350 000 Eur-ról 300 000 Eur-ra! Az eladó a vételárat euróban kéri. Irányár: 300 000 euró. Műszaki paraméterek: - 2025-ben épült Porotherm 38 cm-es téglából, a homlokzat 10 cm-es nikecellel szigetelve - a tető cseréppel fedett - alapterület: 170 nm, telek mérete: 1180 nm - földszint: előtér, lépcsőház, nappali – konyha - étkező, Fürdőszoba + WC, szoba, terasz - tetőtér: közlekedő, társalgó, 2 szoba, fürdőszoba + WC, természetre néző erkély - pinceszint: közlekedő, dupla garázs, WC, tároló - műanyag nyílászárók hőszigetelt üveggel - fűtés: kondenzációs fali gázkazán, padlófűtés a nappaliban és a tetőtéri társalgóban, a szobákban – radiátoros fűtés - burkolatok: járólap és laminált padló - meleg víz ellátás: elektromos üzemű bojler - parkolási lehetőség: 57,48 nm-es duplagarázs Az ingatlan egyéb jellemzői: - az ár kulcsrakész állapotra érvényes, bútorok és lámpatestek nélkül - könnyen megközelíthető helyen helyezkedik el - lehetőség tökéletes kikapcsolódásra és pihenésre, gyalogosan kb. 20-30 percnyire a gyógyfürdőtől Ezt az ingatlant állandó lakhatásra és befektetők figyelmébe is ajánlom. Amennyiben hirdetésem felkeltette érdeklődését, kérem keressen bizalommal! Irodánk szolgáltatásai igény esetén: ügyvéd, energetikai tanúsítvány, hitelügyintézés, értékbecslés, statikus, földmérő, belsőépítész Biztonság, szakértelem - GOLD BALATON HOME -  „Élj ott, ahol mások nyaralnak”
https://ingatlanok.hu/elado/haz/kehidakustany/113-ezer-ft;170-negyzetmeter;4-szoba;kozponti-futes/11607184