Az értékesítő:
Csörnyei Tamás
+36 20 996 6669

Eladó ipari ingatlan Csorna, 186 200 000 Ft+ÁFA, 1 055 négyzetméter

186 200 000 Ft+ÁFA
ipari ingatlan, 1 055 négyzetméter
Ingatlan állapota:
Átlagos
Azonosító:
11607441
Értékesítés típusa:
eladó
Ingatlan típusa:
ipari ingatlan
Jelleg:
Egyéb
Település:
Csorna
Alapterület:
1055
Ár:
186 200 000 Ft+ÁFA
Telekterület típusa:
Négyzetméter
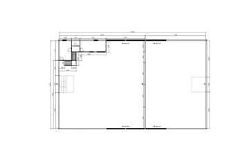
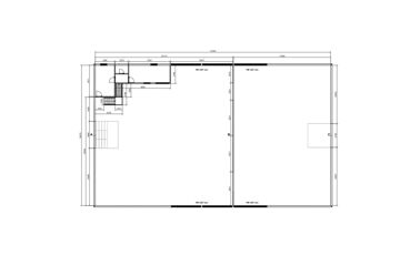
Csornán, ipari, kereskedelmi környezetben, 2500 m2-es telken elhelyezkedő, 1055 m2-es, gyártásra, raktározásra alkalmas csarnok épület, irodával, szociális részekkel eladó. Ár: 186 200 000,-Ft+ÁFA Érd.: 06-20/9-966-669 Az eladó ingatlan Csornán ipari, kereskedelmi környezetben, a 85-ös és a 86-os autóútról jól megközelíthető részen helyezkedik el. A 2500 m2-es telekre 2012-ben épült a szendvics panel falszerkezettel, acél tartó szerkezettel rendelkező felépítmény. A 20 cm-es csiszolt aljzatbeton terhelhetősége 5t/m2. A csarnok tiszta belmagassága 565 cm, csúcs magassága pedig 990 cm. A természetes fény bejutását felül bevilágító és oldal fali ablakok biztosítják. A csarnokon belül került kialakításra a két szintes, összesen 83 m2-es iroda szociális rész. Az irodákból panoráma ablakok nyílnak a gyártó térre. Az épület gázról üzemelő, kiépített hőlégbefúvós rendszerrel fűthető. Mivel az épület jelenleg egy nagyobb telken helyezkedik el, aminek a megosztása eredménye képen alakul ki a 2500 m2-es telek, a közmű mérőpontokat (elektromos áram, víz, gáz) az új tulajdonosnak szükséges kialakítani. Ezek időbeni lezajlásáig a jelenlegi kapcsolatokat használhatja, almérőkön keresztül. Az eladási ár ezen költségek figyelembe vételével került kialakításra.
https://ingatlanok.hu/elado/ipari_ingatlan/csorna/186-millio-ft;1055-negyzetmeter;egyeb-jellegu;nincs-megadva-tulajdonviszony/11607441