Az értékesítő:
Lőrinczy László
+36 30 180 4608

Eladó családi ház Dabas, 79 990 000 Ft, 84 négyzetméter

79 990 000 Ft
családi ház, 84 négyzetméter
Egész szobák:
4
Komfort fokozat:
Összkomfort
Fűtés módja:
Hőszivattyú
Ingatlan állapota:
Épülő
Azonosító:
11607798
Értékesítés típusa:
eladó
Ingatlan típusa:
családi ház
Jelleg:
Ikerház
Település:
Dabas
Alapterület:
84
Telekterület:
300
Ár:
79 990 000 Ft
Szintek száma:
Földszintes
Fűtés jellege:
Geotermikus
Kor:
Új építésű
Terasz:
Van
Pince:
Nincs
Telekterület típusa:
négyzetméter
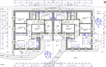
Dabason 300 nm-es intim telken, újonnan épülő nettó 84 nm-es hasznos lakótérrel rendelkező, nappali+3 hálós hátsó ikerház eladó. Az ingatlan 30-as Ytong falazóelemből épült, fa födémmel. A tető héjazata antracit betoncserép, a homlokzatok 10cm Austrotherm EPS, a padló 10cm Austrotherm AT-N100-as, a vízszintes födém 25cm Ásványgyapot szigeteléssel lesz ellátva. A minimális energiaigényt a megfelelő szigetelésen kívül a megújuló energiát használó gépészet is biztosítja, a fűtést és a meleg víz ellátást hőszivattyús rendszer fogja ellátni, padlófűtéssel. A műszaki tartalom választható az alábbi költségkereten belül: -hidegburkolat: 6000.- Ft./m2-ig. -meleg burkolat: 6000.- Ft./m2-ig -csaptelepek:15.000.- Ft./db -kád vagy zuhany: 40.000.- Ft. -beltéri ajtók:35.000.- Ft./db Elektromos kiépítés: -Konnektorok szobákban: 3 db -Konnektorok nappaliban: 4 db + internet és kábel tv kiállás -Konnektorok konyhában: 6 db -Világítás helyiségenként:1-1 db -Kábeltévé: Előkészítés Magasabb árú tatalom is választható a különbség finanszírozásával, várható átadás megállapodást követően fél éven belül. INGYENES hitel tanácsadás, CSOK Plusz Otthonstart ügyintézés! BANKFÜGGETLEN hitelcentrumunk az összes elérhető bank és hitelintézet ajánlatát versenyezteti az Ön kedvéért, ráadásul DÍJMENTESEN. Amennyiben hirdetésem felkeltette az érdeklődését vagy egyéb információra van szüksége hívjon bizalommal! LL
https://ingatlanok.hu/elado/haz/dabas/80-millio-ft;84-negyzetmeter;4-szoba;geotermikus-futes/11607798