Az értékesítő:
Puskás Attila
+36 70 394 1132

Eladó lakás Hévíz, 42 000 000 Ft, 35 négyzetméter

42 000 000 Ft
lakás, 35 négyzetméter
Építőanyag:
Tégla
Egész szobák:
2
Komfort fokozat:
Összkomfort
Ingatlan állapota:
Kitűnő
Azonosító:
11608353
Értékesítés típusa:
eladó
Ingatlan típusa:
lakás
Település:
Hévíz
Alapterület:
35
Ár:
42 000 000 Ft
Emelet:
Földszint
Lift:
Nincs
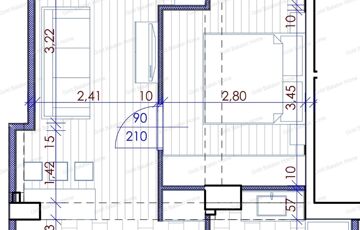
Földszinti lakás eladó Hévíz központjában! A Gold Balaton Home Ingatlaniroda megvételre kínálja a 200 161-es sorszámú HÉVÍZI TÁRSASHÁZI LAKÁSÁT. A keleti fekvésű társasházi lakás csendes környezetben helyezkedik el a ház belső udvarán. Állandó lakhatásra, vagy nyaralónak is jó választás Ön és családja számára. Tó távolsága 900 méter.   Lakás átadása 2026. októberében várható. Az épület meglévő fő falazata megtartásával, most építik meg a lakás helyiségeit. Teljesen új belső kialakítás, új közművek építése. 35,49 m2 területű lakás helyiségei: amerikai konyhás nappali, hálószoba, fürdőszoba WC-vel, közlekedő. Igény esetén tároló vásárolható, és a tároló nagysága még választható. Parkolás a házhoz tartozó belső udvarban.   Műszaki paraméterek: - tégla falazatú ház - fűtés hőszivattyús klímával - műanyag nyílászárók - villanybojler biztosítja a melegvizet   Amennyiben hirdetésem felkeltette érdeklődését, kérem keressen bizalommal! Irodánk szolgáltatásai igény esetén: ügyvéd, energetikai tanúsítvány, hitelügyintézés, értékbecslés, statikus, földmérő, belsőépítész. Biztonság, szakértelem - GOLD BALATON HOME - „Élj ott, ahol mások nyaralnak”
https://ingatlanok.hu/elado/lakas/heviz/42-millio-ft;35-negyzetmeter;2-szoba;tegla-epitesu/11608353