Az értékesítő:
Tóth Péter
+36 30 237 4705

Eladó családi ház Budapest XVI. ker, 121 900 000 Ft, 164 négyzetméter

121 900 000 Ft
családi ház, 164 négyzetméter
Építőanyag:
Tégla
Egész szobák:
4
Komfort fokozat:
Dupla komfort
Fűtés módja:
Gáz
Ingatlan állapota:
Azonosító:
11608414
Értékesítés típusa:
eladó
Ingatlan típusa:
családi ház
Jelleg:
Ikerház
Település:
Budapest XVI. ker
Alapterület:
164
Telekterület:
280
Ár:
121 900 000 Ft
Szintek száma:
1 szint
Fűtés jellege:
Cirkó
Kor:
21-50 éves
Terasz:
Nincs
Pince:
Van
Telekterület típusa:
négyzetméter
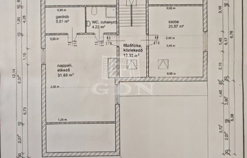
ÖSSZEKÖLTÖZŐK, NAGYCSALÁDOSOK FIGYELEM! XVI.kerület Sashalom városrészén a Szérű utcában, megvételre kínálok egy bruttó 185 nm-es (nettó 168 nm), belső 2 szintes ikerház felet. A lakást 2024-ben műszakilag felújították. Ennek keretében a nyílászárókat 3 rétegű műanyag ablakra cserélték redőnnyel és rovarhálóval, a teljes tetőszerkezet, beleértve a héjazat is teljesen megújult. Az 1988-ban épült ingatlant egy saját lépcsőházon keresztül tudjuk megközelíteni, ahol helyet kapott egy tágas, délnyugati fekvésű nappali, egy keleti fekvésű hálószoba, konyha, fürdőszoba illetve külön wc. A közlekedőből érjük el a 7 nm-es erkélyt. Szintén a közlekedőből jutunk fel a beépített teljes értékű tetőtérbe, ahol ki lett alakítva 2 db külön nyíló szoba, gardrób helyiség és egy zuhanyzós fürdőszoba. A nagyszoba további lehetőségeket rejt magába, szinte bárhogy lehet alakítani, akár 2 db szobává is. A kizárólagos használatú saját (255 nm) kert az intimitást garantálja. A viacolor térkő burkolattal kirakott részen, 1 autó tud megállni telken belül, az utcán 2 db autó, mely a társtulajdonossal fel lett osztva. A lakáshoz tartozik egy 15 nm-es tároló is. A Használati megosztási szerződés szabályozza az esetleges közös terheket, előnyöket. Közlekedése, infrastruktúrája kiváló! Sashalmi hév megálló 3 perc, akárcsak a SPAR szupermarket. Közelben patika, Iskola, Óvoda, minden is. Azon ügyfeleimnek ajánlom ezt a remek elosztású kertvárosi ingatlant, aki nagy családdal költözne és nyitott az esetleg átalakításhoz, felújításhoz. Az ingatlan előre egyeztetett időpontban, kizárólag ingatlanközvetítő bevonásával lehetséges! Amennyiben hirdetésem felkeltette érdeklődését, várom hívását a hét bármely napján. tp
https://ingatlanok.hu/elado/haz/budapest-xvi-ker/122-millio-ft;164-negyzetmeter;4-szoba;cirko-futes/11608414