Az értékesítő:
Kádár Imre
+36 20 415 6324

Eladó ipari ingatlan Törökbálint, 427 000 000 Ft, 1 700 négyzetméter

427 000 000 Ft
ipari ingatlan, 1 700 négyzetméter
Ingatlan állapota:
Átlagos
Azonosító:
11609653
Értékesítés típusa:
eladó
Ingatlan típusa:
ipari ingatlan
Jelleg:
Egyéb
Település:
Törökbálint
Alapterület:
1700
Ár:
427 000 000 Ft
Telekterület típusa:
Négyzetméter
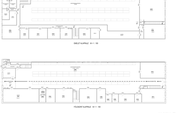
Eladó ipari ingatlan teljes felszereltséggel Törökbálinton! Törökbálint iparterületén, kiváló közlekedési adottságokkal, megvételre kínálunk egy 1730 m²-es ipari létesítményt, amely sokoldalú felhasználásra alkalmas. Főbb jellemzők: • Raktárnak és üzemnek egyaránt kialakítható • Polcrendszerrel, targoncával felszerelt, fűthető raktár • Hidegraktár és hűtőkamra is rendelkezésre áll • Kamionok számára 2 rakodási pont rámpával • Az irodarész és tárgyaló teljes körűen felújított, modern, bútorozott és légkondicionált • Szociális helyiségek: konyha, öltöző és vizes helyésgek • Két szintes kialakítás, amelyben irodák, tárgyalók és raktárak találhatók, valamint műhely vagy üzem is könnyen kialakítható • Biztonságos, zárható irattár és trezor, beléptető rendszer kamerával • Csúszásmentes, mosható műgyanta padló. Az ipari ingatlan könnyen megközelíthető az M0 autópályáról, súlykorlátozás nélkül, ahol 12 személyautó számára kialakított parkoló is rendelkezésre áll. További kérdéseivel vagy egyedi igényekkel kapcsolatban kérem, forduljon hozzám bizalommal! Segítek megtalálni az Ön számára ideális megoldást. Vételár: 427 M Ft
https://ingatlanok.hu/elado/ipari_ingatlan/torokbalint/427-millio-ft;1700-negyzetmeter;egyeb-jellegu;nincs-megadva-tulajdonviszony/11609653