Az értékesítő:
Horváth Péter
+36 70 606 2990

Eladó családi ház Sülysáp, 110 000 000 Ft, 129 négyzetméter

110 000 000 Ft
családi ház, 129 négyzetméter
Építőanyag:
Tégla
Egész szobák:
4
Komfort fokozat:
Összkomfort
Fűtés módja:
Hőszivattyú
Ingatlan állapota:
Kitűnő
Azonosító:
11609731
Értékesítés típusa:
eladó
Ingatlan típusa:
családi ház
Jelleg:
Családi ház
Település:
Sülysáp
Alapterület:
129
Telekterület:
380
Ár:
110 000 000 Ft
Szintek száma:
1 szint
Fűtés jellege:
Geotermikus
Kor:
Új építésű
Terasz:
Van
Pince:
Nincs
Telekterület típusa:
négyzetméter
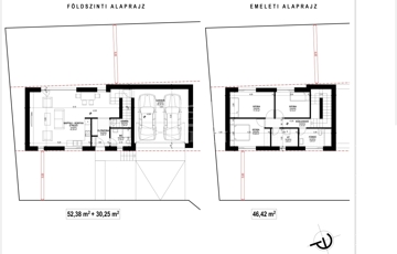
Sülysápon a Viola utcában a Melegvölgyi lakóparkban , 380 m2-es telken, újonnan épülő nettó 98,8 m2 hasznos lakótérrel és 30,25 m2-es garázzsal rendelkező, 3 szoba + nappalis csodálatos panorámával rendelkező önálló családi ház eladó. Az ingatlan 30-as Nútféderes tégla falazóelemből épült, mindkét szinten E gerendás vasbeton födémmel. A tető héjazata barna terrán betoncserép , a homlokzatok 15cm EPS, a padló 10cm lépésálló, a vízszintes födém 25cm táblás közetgyapot szigeteléssel lett ellátva. Hét légkamrás argon gázzal töltött 3 rétegű üvegekkel szerelt melegperemes Salamander nyílászárók kerütek beépítésre, 76mm-es tokszerkezettel. A beépített rejtett tokos szigetelt alúmínium redőnyök elektromosak. A fűtést és a hűtést 6kw-os split rendszerű daikin hőszivattyús rendszer látja el, padlófűtéssel és menyezet hűtés-fűtéssel. A használati melegvizet is a hőszivattyú szolgáltatja indirekt tartállyal. A két autó befogadására alkalmas garázst elektromos hörmann ajtóval látták el. A biztonságról nyitás és mozgásérzékelőkkel szerelt riasztórendszer gondoskodik. Minőségi beltéri ajtók, szaniterek, geberit falsík mögötti wc tartályok, ledes világítás, igényes kivitelezés jellemzik az ingatlant. A külső homlokzati szín, WC csészék és mosdók még választhatóak. INGYENES hitel tanácsadás, CSOK Plusz ügyintézés! BANKFÜGGETLEN hitelcentrumunk az összes elérhető bank és hitelintézet ajánlatát versenyezteti az Ön kedvéért, ráadásul DÍJMENTESEN. - Egyedi, bankfiókban nem elérhető kamat- és díjkedvezmények - Hitelképesség vizsgálat - Idő, energia és pénz megtakarítás - Teljes hivatali ügyintézés Amennyiben hirdetésem felkeltette az érdeklődését vagy egyéb információra van szüksége hívjon bizalommal!
https://ingatlanok.hu/elado/haz/sulysap/110-millio-ft;129-negyzetmeter;4-szoba;geotermikus-futes/11609731