Az értékesítő:
Petrován Pál Gyula
+36 70 789 1998

Eladó családi ház Nyíregyháza, 89 000 000 Ft, 109 négyzetméter

89 000 000 Ft
családi ház, 109 négyzetméter
Építőanyag:
Tégla
Egész szobák:
4
Komfort fokozat:
Dupla komfort
Fűtés módja:
Gáz
Ingatlan állapota:
Kitűnő
Azonosító:
11609741
Értékesítés típusa:
eladó
Ingatlan típusa:
családi ház
Jelleg:
Családi ház
Település:
Nyíregyháza
Alapterület:
109
Telekterület:
781
Ár:
89 000 000 Ft
Szintek száma:
Földszintes
Fűtés jellege:
Cirkó
Kor:
Új építésű
Terasz:
Nincs
Pince:
Nincs
Telekterület típusa:
négyzetméter
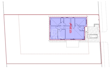
Eladó Nyíregyháza Nyírszőlős részén a Gólyahír lakóparkban 2025-ben épülő új amerikai stílusú A++ besorolású 4 szobás kertes családi ház. (T/1) Ára: 89.000.000 Ft. Az ingatlan alap méretei: - a telek mérete: 781nm, - a ház alapterülete: 137nm. Az épület hasznos alapterülete 108,7nm melyben található: - 4 szoba, - amerikai konyhás nappali, - fürdőszoba + WC, - mosókonyha, - WC, - közlekedő, - előtér, - fedett terasz. Az új építésű családi ház várhatóan 8 hónapon belül kerül átadásra, mely korszerű hő takarékos építészeti megoldásokat alkalmazva készül el. A falazata 30-as téglából épül, mely 15 cm-es EPS homlokzati hőszigetelést kap. A födém szerkezete 15 cm-es ásványszálas hőszigetelésű lesz, így az egész épület energetikai szempontból A++ kategóriájú. Az amerikai stílusú kombinált sátortető cseréppel lesz fedve. Az épületben áram, víz, gáz és csatorna szintén bekötésre kerül. Az épület padlófűtéssel, radiátoros fűtéssel vagy kérés esetén a kettő kombinációjával készül el, mely gáz cirkó kazánról fog működni. Ezen kívül még 2 db hűtő-fűtő klíma is rendelkezésre fog állni. A melegvíz ellátásról szintén a gáz cirkó kazán gondoskodik. Az ingatlan ideális választás lehet mindazok számára, akik új építésű, modern energiatakarékos otthont keresnek nyugodt kertvárosi környezetben. Fontos! Az ingatlan per és tehermentes, 3 gyerekes CSOK Plusz is igénybe vehető! Figyelem! Minőségi kivitelezés és választható belső burkolatok, szaniterek. 2025-ös energetikai szabványoknak megfelelő modern megoldások. A belső elrendezés igény szerint módosítható. Ha felkeltette érdeklődését, hívja irodánkat bizalommal! Ha hitelre van szüksége éljen ingyenes, személyre szabott hitel ügyintézési szolgáltatásunkkal is.
https://ingatlanok.hu/elado/haz/nyiregyhaza/89-millio-ft;109-negyzetmeter;4-szoba;cirko-futes/11609741